Wohnung mieten - Rotenstrasse 2689, 9612 Dreien
Warum Sie diese Immobilie lieben werden
Ruhige Lage auf dem Land
Direkter Zugang zum Garten
Rollstuhlgängiger Erdgeschoss
Besichtigung vereinbaren
Besichtigung mit Länzlinger buchen
Neue, einjährige 4,5 zimmer wohnung
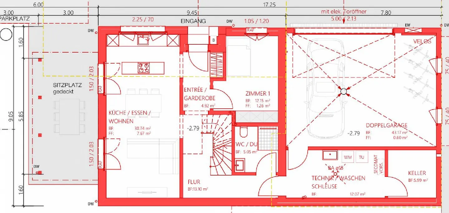
Anfangs 2025 neu erbaute Wohnung auf dem Land. Ruhig gelegener Hausteil, mit Doppelgarage, Aussenparkplatz, eigener Waschküche und Keller.
Im Erdgeschoss befindet sich eine Wohnküche mit direktem Zugang zum überdachten Sitzplatz. Daneben ein Zimmer und ein WC mit Dusche, sowie kleinem Abstellraum unter der Treppe. Auch im Erdgeschoss befindet die Doppelgarage mit direktem Zugang zur Wohnung durch die Waschküche. Der untere Stock ist Rollstuhlgängig.
Im oberen Stock befinden sich 2 weitere Zimmer. ...
Immobiliendetails
- Verfügbar ab
- Nach Vereinbarung
- Zimmer
- 4.5
- Baujahr
- 2024
- Renovierungsjahr
- 2024
- Wohnfläche
- 90 m²
- Etage
- EG
- Geschosse
- 2



