Penthouse mieten - Neudorfstrasse 25c, 9240 Uzwil
Warum Sie diese Immobilie lieben werden
Geräumige Terrasse zum Entspannen
Moderne Küche mit Induktion
Photovoltaikanlage installiert
Besichtigung vereinbaren
Besichtigung mit Ramona buchen
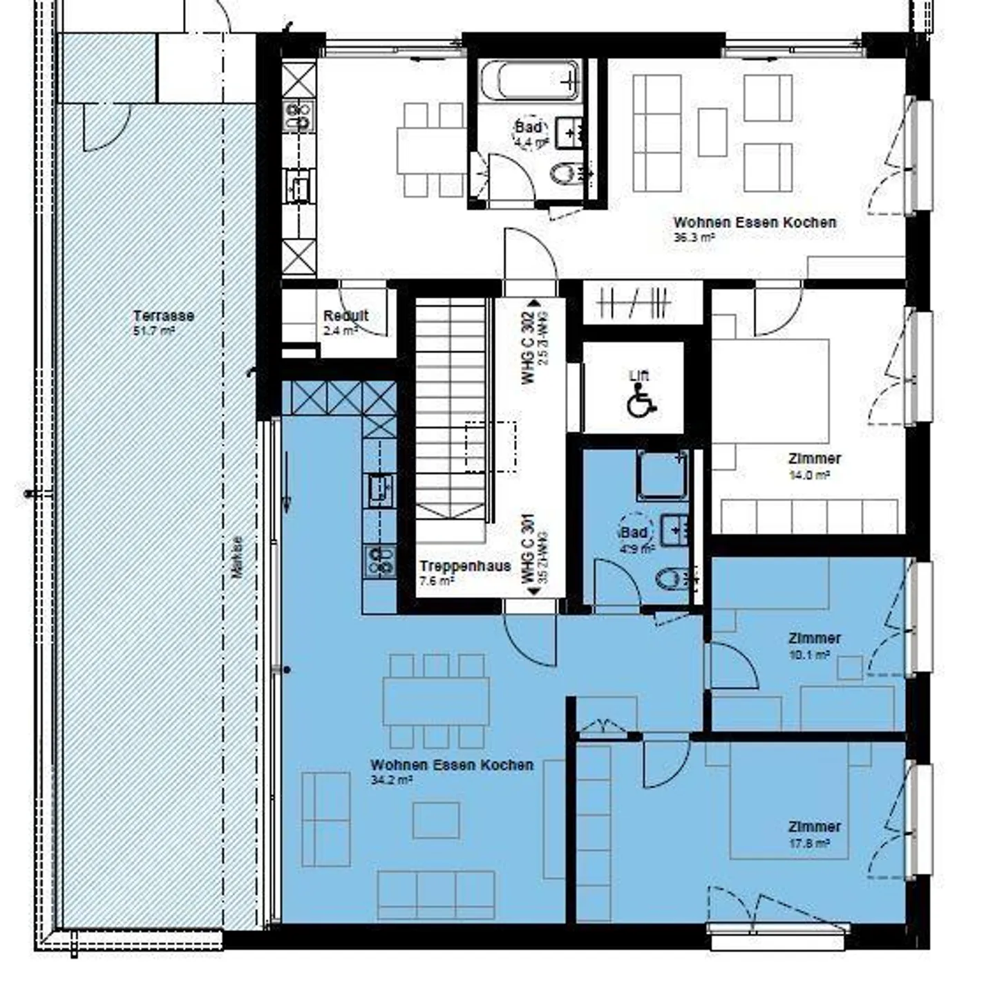
Attika Wohnung mit grosser Terrasse
Per 01.05.2026 vermieten wir diese moderne 3.5-Zimmer-Wohnung an der Neudorfstrasse 25c in Uzwil.
Das erwartet Sie:
* Komplette Wohnung mit Feinsteinplatten
* Küche mit Induktionskochfeld, Backofen, Kühlschrank mit sep. Gefrierschrank
* großzügiges Badezimmer mit Dusche
* eigener Keller mit Waschmaschine und Tumbler im UG
* grosse Terrasse
* Lift
* Die Liegenschaft verfügt über eine Photovoltaik Anlage
Zur Wohnung können Tiefgaragenplätze à CHF 130.00/Monat oder Tiefgaragenplätze mit E-Ladestation à CH...
Kostenaufstellung
- Nettokosten
- CHF 1’846
- Zusätzliche Kosten
- CHF 180
- Gesamtkosten
- CHF 1’846
Immobiliendetails
- Verfügbar ab
- 01.05.2026
- Zimmer
- 3.5
- Wohnfläche
- 71 m²
- Etage
- 3.



