Wohnung mieten - Limmattalstrasse 244, 8049 Zürich
Warum Sie diese Immobilie lieben werden
Zentrale, aber ruhige Lage
Moderne weisse Küche
Pflegeleichter Vinylboden
Besichtigung vereinbaren
Besichtigung mit Jennifer buchen
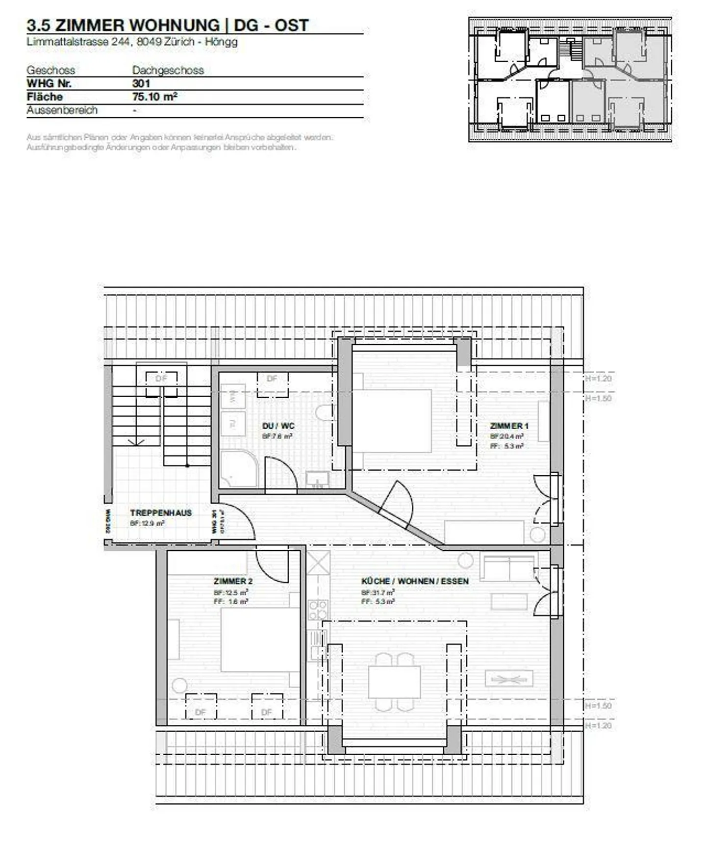
Zentrales, aber ruhiges wohnen - schöne 3.5-zimmer-dachgeschosswohnung in höngg
Wir vermieten per sofort oder nach Vereinbarung diese schöne 3.5-Zimmer-Wohnung im Dachgeschoss.
Die Lage des Gebäudes verspricht ein ruhiges Wohnen und dennoch sehr zentral.
Die Wohnung ist mit einer weissen Küche ausgestattet, welche über ein 4er Kochfeld, einen Kühlschrank mit integriertem Tiefkühlfach, einen Backofen und einen Geschirrspüler verfügt.
Das Badezimmer ist einfach gehalten. Dieses verfügt über Dusche, Spiegelschrank, Lavabo mit Waschbeckenunterschrank und Toilette. Zudem ist es mit...
Kostenaufstellung
- Nettokosten
- CHF 2’809
- Zusätzliche Kosten
- CHF 220
- Gesamtkosten
- CHF 2’809
Immobiliendetails
- Verfügbar ab
- 01.11.2025
- Zimmer
- 3.5
- Wohnfläche
- 75 m²
- Etage
- 3.



