Wohnung mieten - Wilerstrasse 24, 9230 Flawil
Warum Sie diese Immobilie lieben werden
Moderne Küche mit Geschirrspüler
Geräumige Dusche im Bad
Helles Vinyl im gesamten Wohnbereich
Besichtigung vereinbaren
Besichtigung buchen
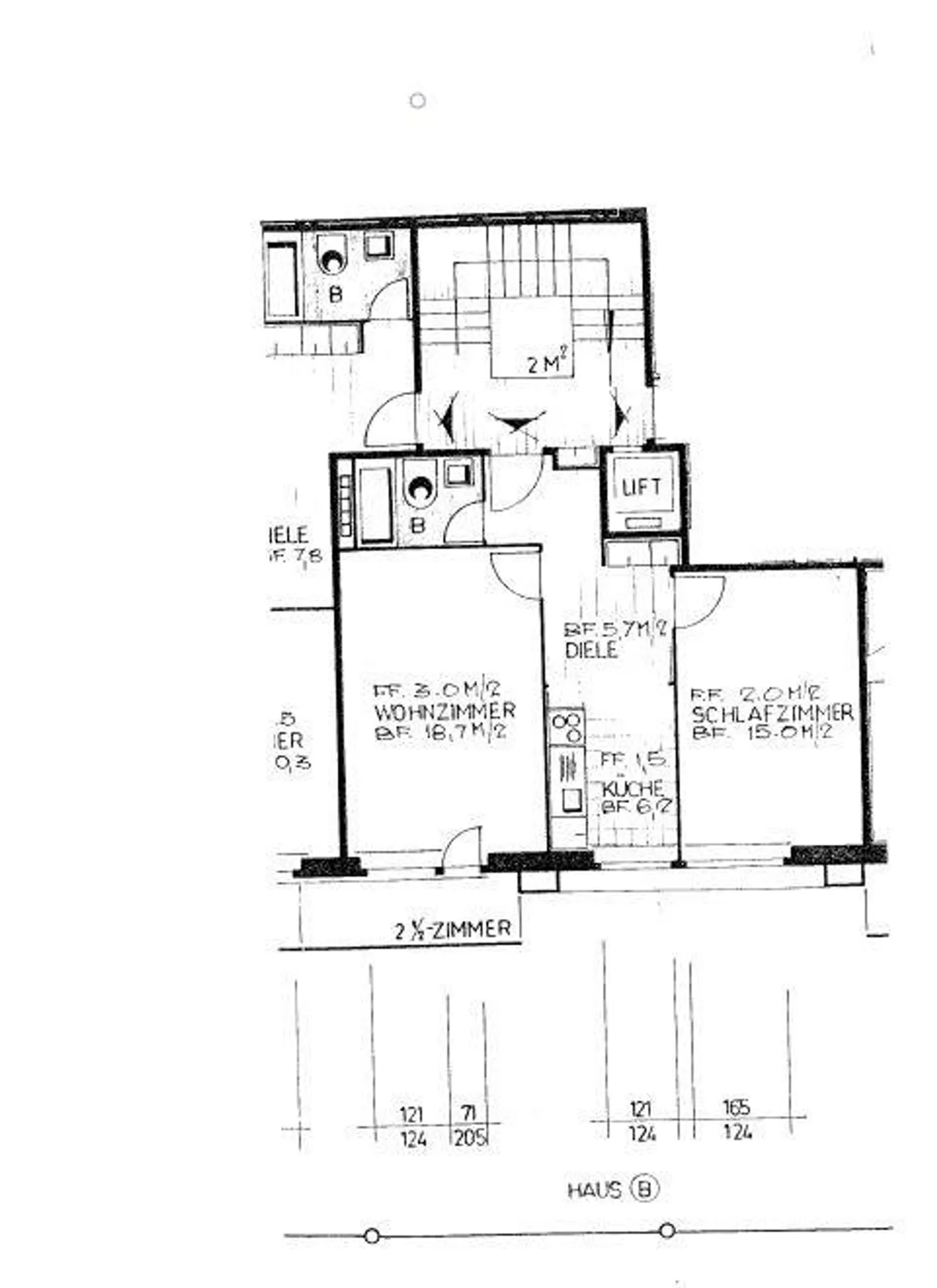
2.5 zwg im zentrum mit lift, frisch saniert
Im Zentrum von Flawil vermieten wir eine gemütliche 2 Zimmerwohnung, welche Totalsaniert wurde.
Die moderne Küche bietet einen Geschirrspüler, grossen Kühlschrank inkl. Tiefkühlschubladen, Glaskeramikherd und Dampfabzug.
Das Bad verfügt über eine grosse Dusche, Toilette und Waschbecken mit Spiegelschrank.
Bodenbeläge;
Küche, Flur und Bad Keramikplatten
Wohn- und Schlafzimmer einen pflegeleichten und hellen Vinyl
zur Wohnung gehört ein Kellerabteil.
Ein Tiefgaragenplatz kann für CHF 120.00 pro Monat daz...
Kostenaufstellung
- Nettokosten
- CHF 1’085
- Zusätzliche Kosten
- CHF 165
- Gesamtkosten
- CHF 1’085
Immobiliendetails
- Verfügbar ab
- Nach Vereinbarung
- Zimmer
- 2.5
- Baujahr
- 1960
- Renovierungsjahr
- 2025
- Wohnfläche
- 47 m²
- Etage
- 4.
- Geschosse
- 4



