Wohnung mieten - Mühlestrasse 24, 8912 Obfelden
Warum Sie diese Immobilie lieben werden
Moderne offene Küche
Hochwertige V-Zug Geräte
Geräumiger Wohnbereich
Besichtigung vereinbaren
Besichtigung mit Sarah buchen
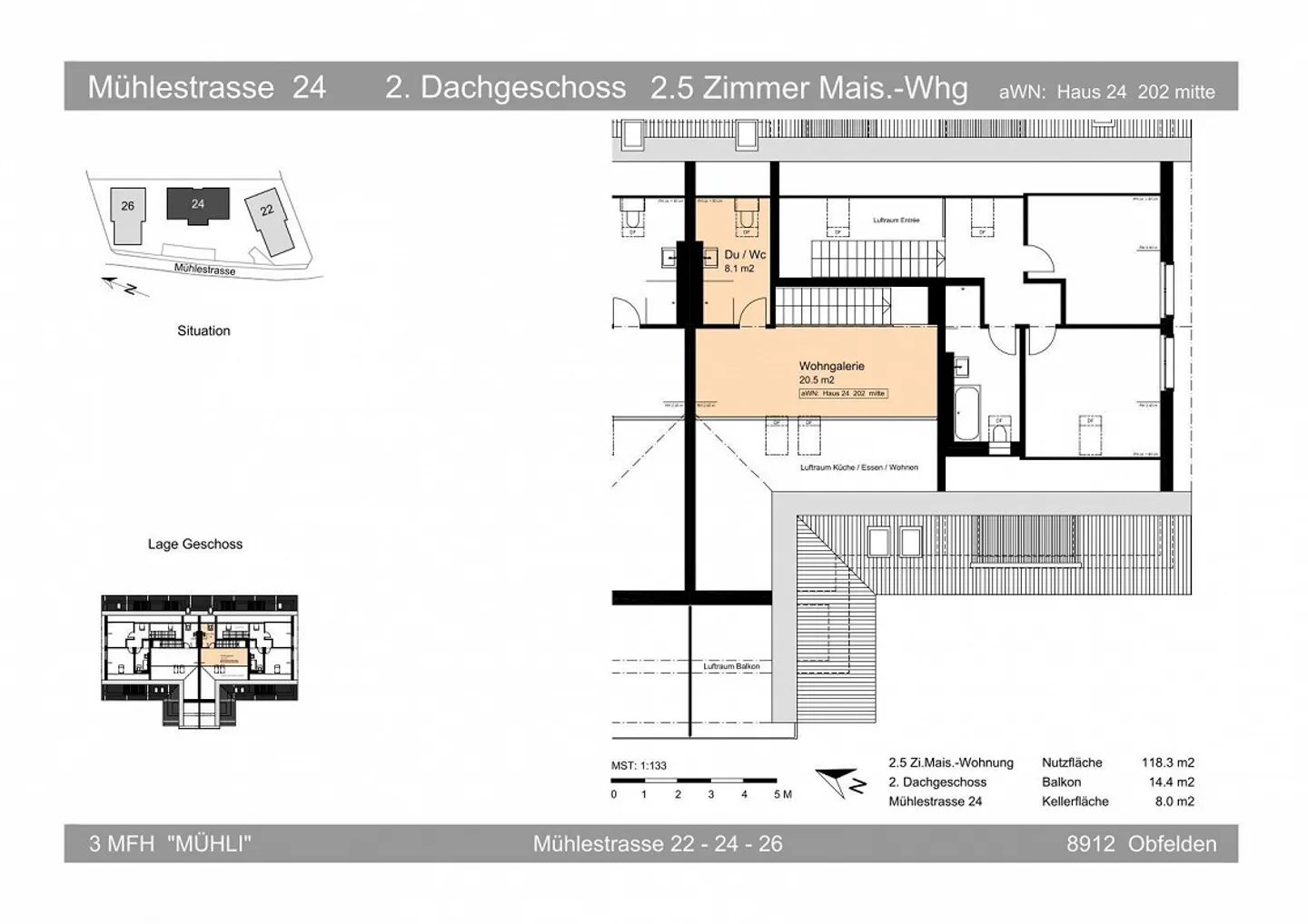
2.5 Zimmerwohnung in Obfelden
Die exklusive Dachwohnung bietet eine offene, moderne Küche mit praktischem, grosszügigen Reduit, hochwertigen V-Zug Einbaugeräten, darunter ein Combisteamer-Backofen, Induktionskochfeld, Kühlschrank mit Gefrierfach und ein Geschirrspüler.
Das Wohnzimmer, die Wohngalerie sowie die beiden Nasszellen wurden mit zeitgemässen Keramikplatten ausgestattet, während im grosszügigen Schlafzimmer ein europäischer Eichen-Parkettboden verlegt wurde.
Die Wohnung verfügt über zwei Nasszellen einmal mit Dusche/W...
Kostenaufstellung
- Nettokosten
- CHF 2’448
- Zusätzliche Kosten
- CHF 193
- Gesamtkosten
- CHF 2’448
Immobiliendetails
- Verfügbar ab
- Nach Vereinbarung
- Zimmer
- 2.5
- Wohnfläche
- 118 m²
- Etage
- 10.



