Wohnung mieten - Chemin De Grandchamp 24, 1806 St-Légier-La Chiésaz
Warum Sie diese Immobilie lieben werden
Moderne offene Küche
Geräumige Terrasse
Moderne Badezimmerausstattung
Besichtigung vereinbaren
Besichtigung mit Caraccio buchen
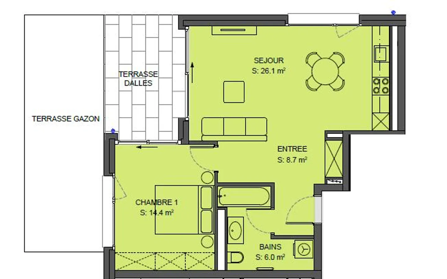
Schöne Wohnung mit Terrasse in einem neueren Gebäude
Sehr schöne Unterkunft, die Folgendes umfasst:
- Einen Eingangsbereich mit Wandschränken,
- Eine voll ausgestattete Küche, die zum Wohnzimmer geöffnet ist,
- Ein Schlafzimmer,
- Ein Badezimmer/WC mit einer Waschsäule,
- Eine Terrasse,
- Ein Keller.
Innenparkplatz für CHF 120.00/Monat verfügbar.
Verfügbar ab dem 16. Juli 2026.
Wenn Sie eine Besichtigung wünschen, kontaktieren Sie bitte den aktuellen Mieter, Herrn Vincent Gonseth, Telefon Nr. +41 78 829 79 39.
Nicht vertragliche Fotos.
Bei Interesse und nur ...
Kostenaufstellung
- Nettokosten
- CHF 1'600
- Zusätzliche Kosten
- CHF 180
- Gesamtkosten
- CHF 1'600
Immobiliendetails
- Verfügbar ab
- Nach Vereinbarung
- Zimmer
- 2.5
- Baujahr
- 2020
- Wohnfläche
- 55 m²
- Etage
- EG



