Wohnung mieten - Rorschacher Strasse 236, 9016 St. Gallen
Warum Sie diese Immobilie lieben werden
Geräumige Küche mit modernen Geräten
Helle Wohnbereiche mit Laminat
Zentrale Lage nahe Annehmlichkeiten
Besichtigung vereinbaren
Besichtigung mit Marlis buchen
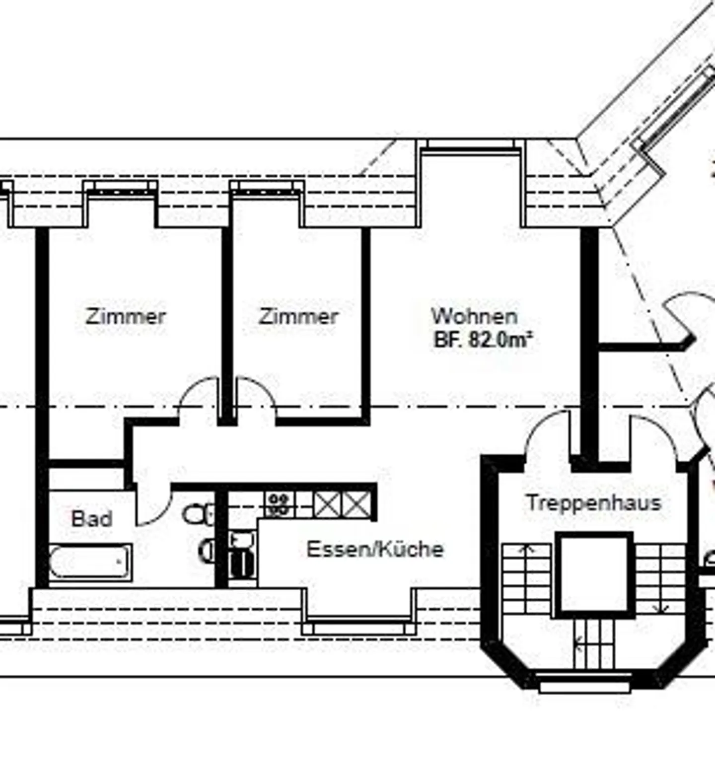
Wohnen über den dächern von st. gallen - hell, zentral und charmant!
Diese grosszügige und lichtdurchflutete 3.5 Zimmer-Dachwohnung überzeugt durch ihren durchdachten Grundriss und die zentrale Lage im beliebten Stadtteil Neudorf.
Die Wohnung bietet Ihnen folgende Annehmlichkeiten:
- geräumige Küche mit Geschirrspüler, Backofen, Glaskeramikherd, Kühlschrank und genügend Stauraum für Ihre Küchenutensilien
- ganze Wohnung (ausser Küche und Nasszellen) mit Laminatboden
- Badezimmer mit Dachfenster, Einbauschrank, Lavabo, Spiegelschrank und Badewanne
- zwei schöne Schlaf...
Kostenaufstellung
- Nettokosten
- CHF 1’570
- Zusätzliche Kosten
- CHF 270
- Gesamtkosten
- CHF 1’570
Immobiliendetails
- Verfügbar ab
- 11.11.2025
- Zimmer
- 3.5
- Baujahr
- 1986
- Renovierungsjahr
- 2003
- Wohnfläche
- 82 m²
- Etage
- 5.



