Maisonette mieten - Impasse Des Cigognes 23, 1773 Léchelles
Warum Sie diese Immobilie lieben werden
Geräumiges Wohnzimmer 38 m²
Moderne Küche mit Balkon
Geothermische Heizungsanlage
Besichtigung vereinbaren
Besichtigung buchen
Duplex 3,5 zimmer
Duplex 3,5 Zimmer Dachgeschoss
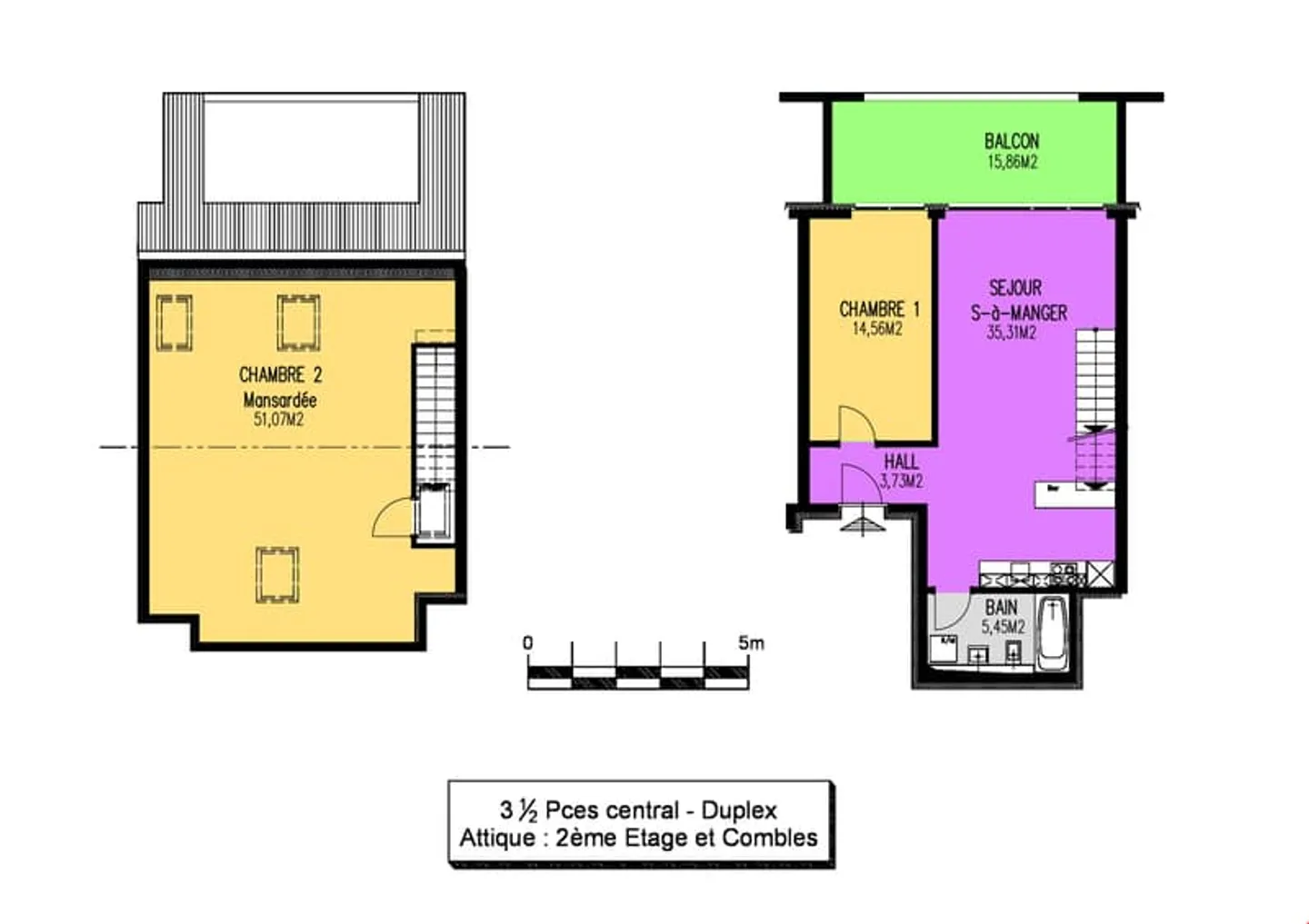
Zu vermieten in 1773 Léchelles in einem modernen Gebäude, am Rande eines Grünbereichs und 2 Minuten zu Fuß vom CFF-Bahnhof entfernt.
Schöne Dachgeschosswohnung mit 3,5 Zimmern im Duplex, geräumig und hell, mit schönem unverbautem Blick, im 2. und letzten Stock.
Eingang Wohnzimmer von 38 m2, Zugang zum Balkon von 18 m2.
Moderne Einbauküche.
1 Elternschlafzimmer mit Parkett, angrenzendes Badezimmer mit Badewanne.
1 individuelle Waschsäule.
1 Duplex-Wohnzimmer von 55 m2
1 Kel...
Kostenaufstellung
- Nettokosten
- CHF 1’640
- Zusätzliche Kosten
- CHF 110
- Gesamtkosten
- CHF 1’640
Immobiliendetails
- Verfügbar ab
- Nach Vereinbarung
- Zimmer
- 3.5
- Wohnfläche
- 95 m²



