Wohnung mieten - Wilstrasse 22, 5610 Wohlen AG
Warum Sie diese Immobilie lieben werden
Sonniger Balkon zur Entspannung
Moderne offene Kücheneinrichtung
Praktischer Tiefgaragenplatz
Besichtigung vereinbaren
Besichtigung buchen
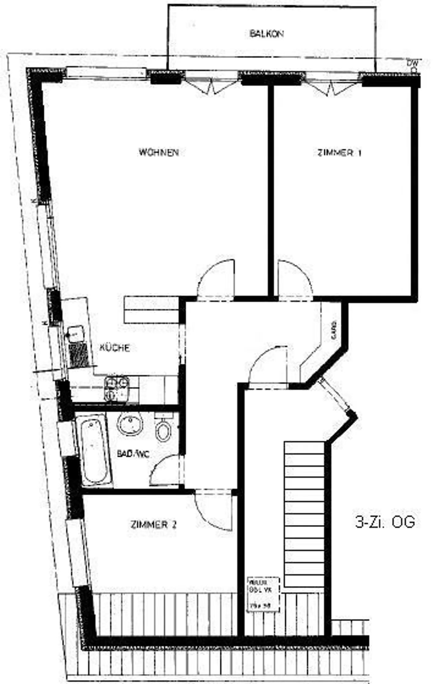
«3 Zimmer Wohnung»
Helle, schöne und komfortable 3-Zi-Wohnung in 3-Familienhaus. Offene Küche mit neuem Geschirrspüler und Glaskeramik-Kochfeld, neue Fenster, helle Plattenböden und Laminat in den beiden Schlafzimmern, Bodenheizung, sonniger Balkon. Nasszelle mit Duschbadewanne und WC. Praktische Garderobe, genügend Steckdosen und Internetzugänge in allen Räumen.WM/Tumbler im Keller, Kellerabteil mit Steckdose. Wasserenthärtungsanlage.Tiefgaragenplatz CHF 125.-, Parkplatz beim Haus CHF 40.-Die Wohnung ist neu gest...
Kostenaufstellung
- Nettokosten
- CHF 1’545
- Zusätzliche Kosten
- CHF 265
- Gesamtkosten
- CHF 1’545
Immobiliendetails
- Verfügbar ab
- Nach Vereinbarung
- Zimmer
- 3
- Wohnfläche
- 72 m²
- Etage
- 1.

