Wohnung mieten - Viktoriastrasse 21, 3013 Bern
Warum Sie diese Immobilie lieben werden
Offene Küche mit modernen Geräten
Private Waschküche und Abstellraum
Bequemer Zugang zu öffentlichen Verkehrsmitteln
Besichtigung vereinbaren
Besichtigung mit Wincasa buchen
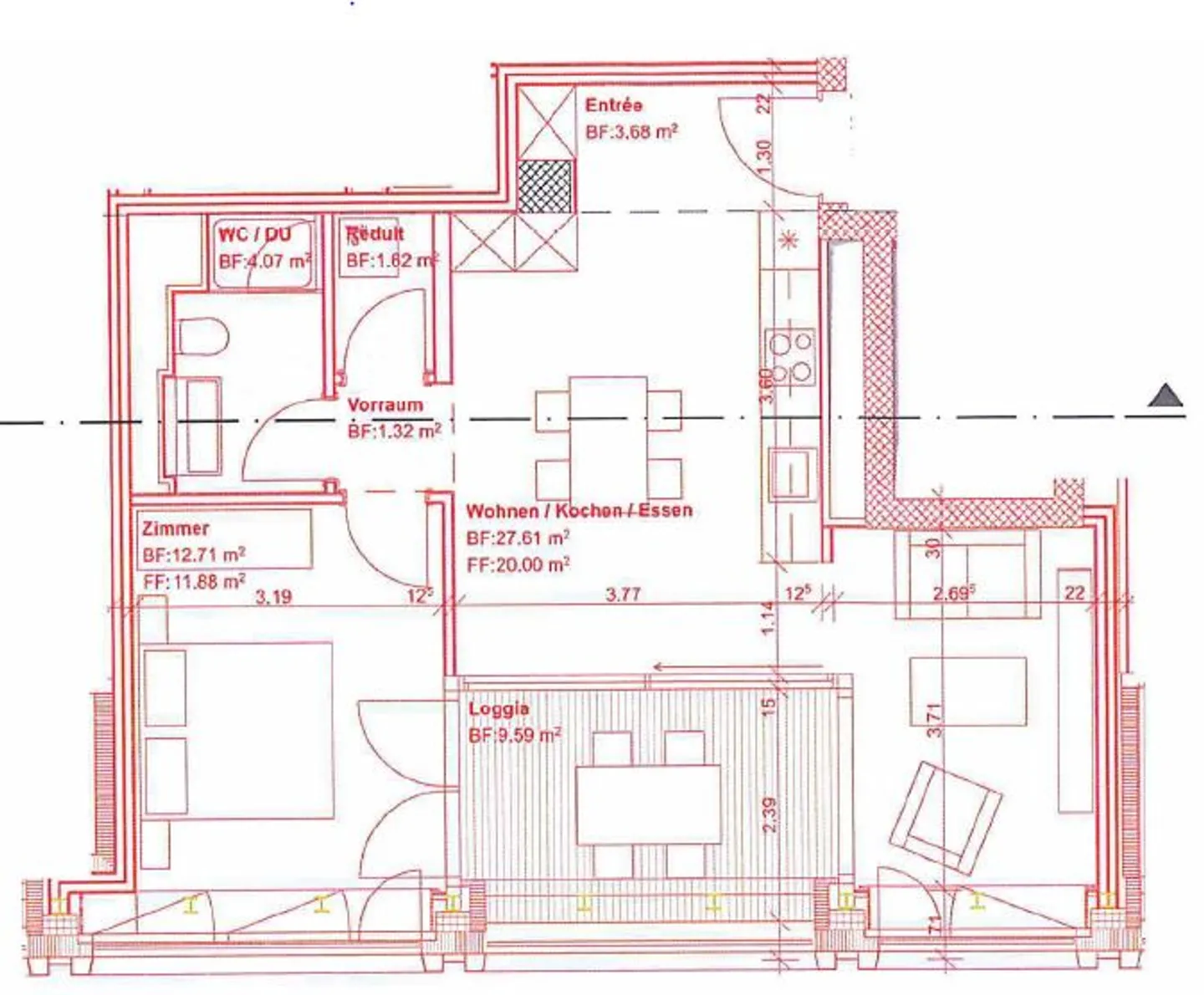
Wir vermieten eine schöne und moderne Wohnung an sonniger Lage. Diese Liegenschaft wird Ihren hohen Ansprüchen gerecht. Was Sie erwartet:
- Moderne offene Küche mit GK und GS
- Parkett- und Plattenboden
- Bad mit WC und Dusche
- Wandschränke und Garderobe
- Eigener Waschturm
- Loggia
- Kellerabteil
Die Schönburg bietet sehr viele Annehmlichkeiten wie:
- Bushaltestelle praktisch vor der Haustüre
- Coop und Fitnesscenter eingemietet
Einstellhalle
Bei Bedarf können ein oder mehrere Einstellplätze oder Ausse...
Kostenaufstellung
- Nettokosten
- CHF 2’020
- Zusätzliche Kosten
- CHF 170
- Gesamtkosten
- CHF 2’020
Immobiliendetails
- Verfügbar ab
- Nach Vereinbarung
- Zimmer
- 2.5
- Wohnfläche
- 51 m²
- Etage
- 1.



