Wohnung mieten - Via San Nicolao 21, 6598 Tenero
Warum Sie diese Immobilie lieben werden
Neue Küche mit Geschirrspüler
Sonniger Balkon zum Entspannen
Gemeinschaftsgarten mit Grillbereich
Besichtigung vereinbaren
Besichtigung mit Patrizia buchen
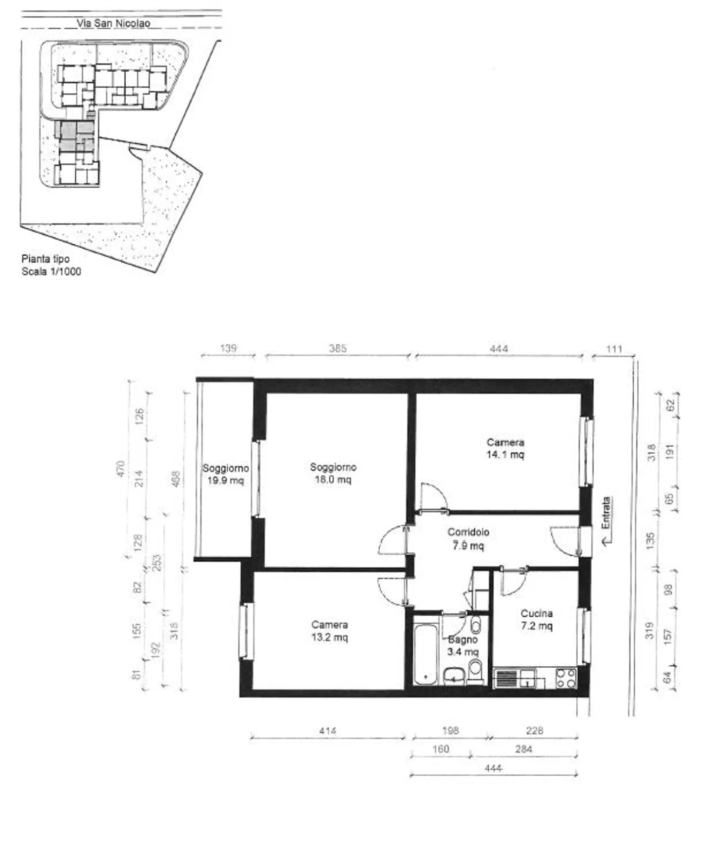
3.5 zimmer komplett renoviert in tenero
Zu vermieten: 3.5-Zimmer-Wohnung, die komplett renoviert wurde, in einem Gebäude mit Aufzug. In der Via San Nicolao 21 in Tenero, in einer sonnigen und ruhigen Gegend.
In der Nähe: FFS-Station, Coop- und Migros-Supermarkt, Zugang zur Halbautobahn.
Die Wohnung ist wie folgt zusammengesetzt:
- Eingang/Flur mit praktischem Einbauschrank
- Neue Küche, ausgestattet mit Geschirrspüler
- Wohnzimmer mit Balkon (19,9 m²)
- Ein Doppelzimmer
- Ein Zimmer
- Ein Badezimmer mit Badewanne
Im Untergeschoss befinden sich...
Kostenaufstellung
- Nettokosten
- CHF 1’390
- Zusätzliche Kosten
- CHF 160
- Gesamtkosten
- CHF 1’390
Immobiliendetails
- Verfügbar ab
- Nach Vereinbarung
- Zimmer
- 3.5
- Renovierungsjahr
- 2025
- Wohnfläche
- 61 m²
- Etage
- EG
- Geschosse
- 5




