Penthouse mieten - Kirschgartenstrasse 21, 4147 Aesch BL
Warum Sie diese Immobilie lieben werden
Sonnige und ruhige Lage
Geräumige Mansarde 27m2
Zugang zum Gemeinschaftsgarten
Besichtigung vereinbaren
Besichtigung mit Max buchen
An sonniger, ruhige lage - inklusive grosse mansarde 27m2!
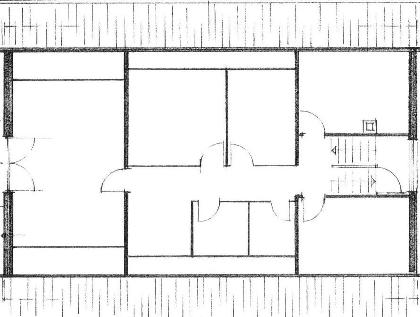
Wir vermieten per 1. Februar 2026 oder nach Vereinbarung in gepflegter, kleinen Liegenschaft mit 3 Parteien eine 3 Zimmer-Dachwohnung im 2. OG ca. 72m2 - mit Mansarde ca. 27 m2:
-Wohnzimmer mit Parkett
-Dusche und Bad, beide mit Fenster
-Sehr ruhige & sonnige Lage in Aesch
-Mansarde 27m2 (als zwei Hobbyräume oder Schlafzimmer nutzbar)
-Garten zur Mitbenützung
Die Wohnung hat keinen Balkon und keinen Lift.
Eine Garage für CHF 120.00 oder Abstellplatz für CHF 40.00 kann dazugemietet werden.
Ein s...
Kostenaufstellung
- Nettokosten
- CHF 1’470
- Zusätzliche Kosten
- CHF 280
- Gesamtkosten
- CHF 1’470
Immobiliendetails
- Verfügbar ab
- Nach Vereinbarung
- Zimmer
- 3
- Wohnfläche
- 72 m²



