Wohnung mieten - St. Gallerstrasse 20, 9032 Engelburg
Warum Sie diese Immobilie lieben werden
Moderne offene Küche
Helles Wohnen mit großen Fenstern
Sonniger Sitzplatz im Freien
Besichtigung vereinbaren
Besichtigung mit Lorena buchen
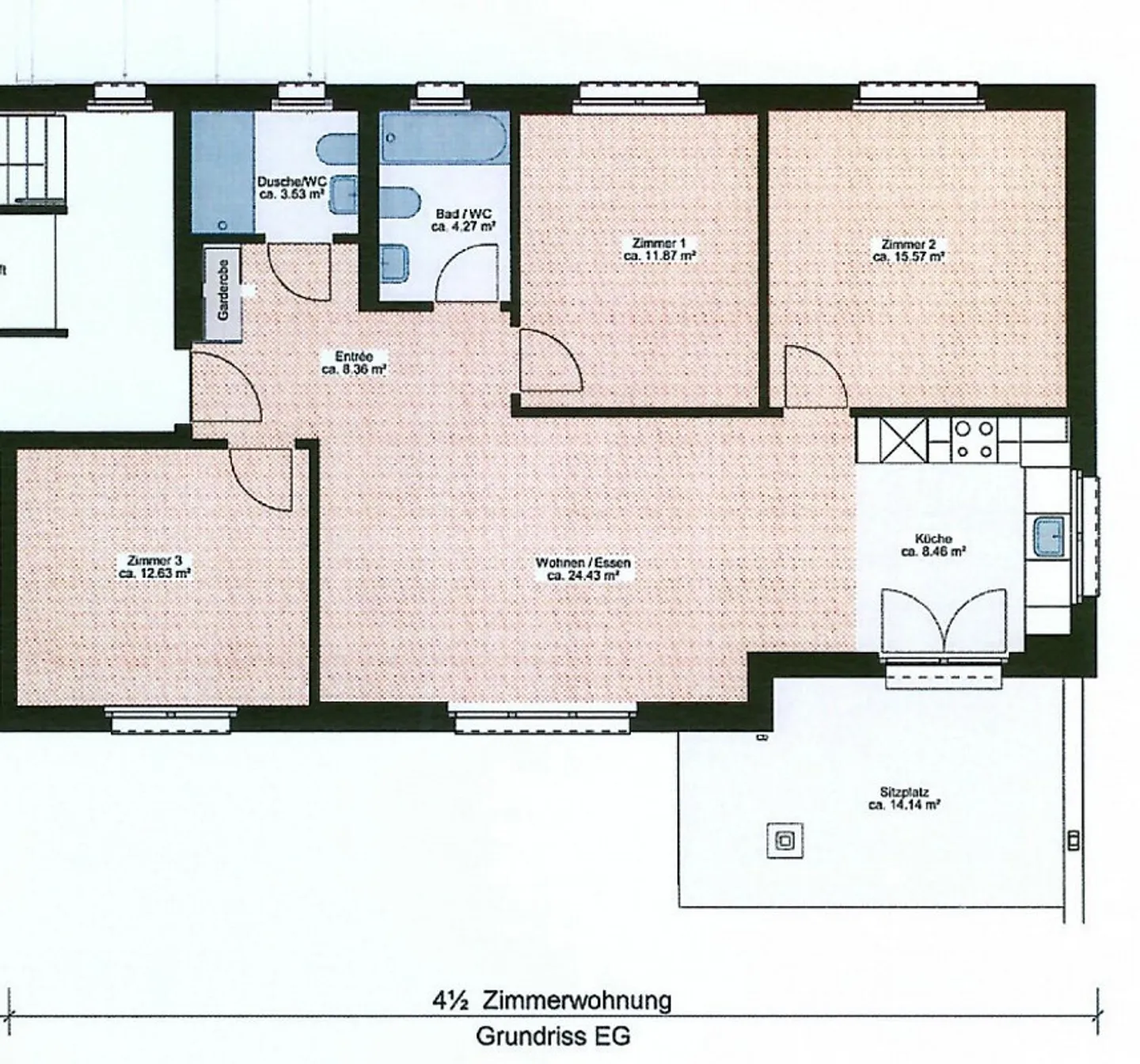
Familienwohnung an vorteilhafter lage
Wir vermieten per 1. Februar 2026 oder nach Vereinbarung eine attraktive 4.5-Zimmer-Parterrewohnung. Folgende Highlights erwarten Sie:
- offene und moderne Küche mit Geschirrspüler, Glaskeramikherd und hochliegendem Backofen
- Parkett- und Plattenböden
- bodentiefe Fenster sorgen für Helligkeit und Wohlbefinden
- Garderobe beim Eingangsbereich
- zwei Nasszellen vorhanden (Bad/WC und Dusche/WC mit Tageslicht)
- sonniger Sitzplatz
- Lift vorhanden
- direkt neben Schulhaus und KiTa gelegen
- Tiefgaragenplat...
Kostenaufstellung
- Nettokosten
- CHF 1’920
- Zusätzliche Kosten
- CHF 250
- Gesamtkosten
- CHF 1’920
Immobiliendetails
- Verfügbar ab
- Nach Vereinbarung
- Zimmer
- 4.5
- Baujahr
- 2010
- Wohnfläche
- 94 m²
- Etage
- EG
- Geschosse
- 1



