Wohnung mieten - Rue Du Chêne 20, 1020 Renens VD
Warum Sie diese Immobilie lieben werden
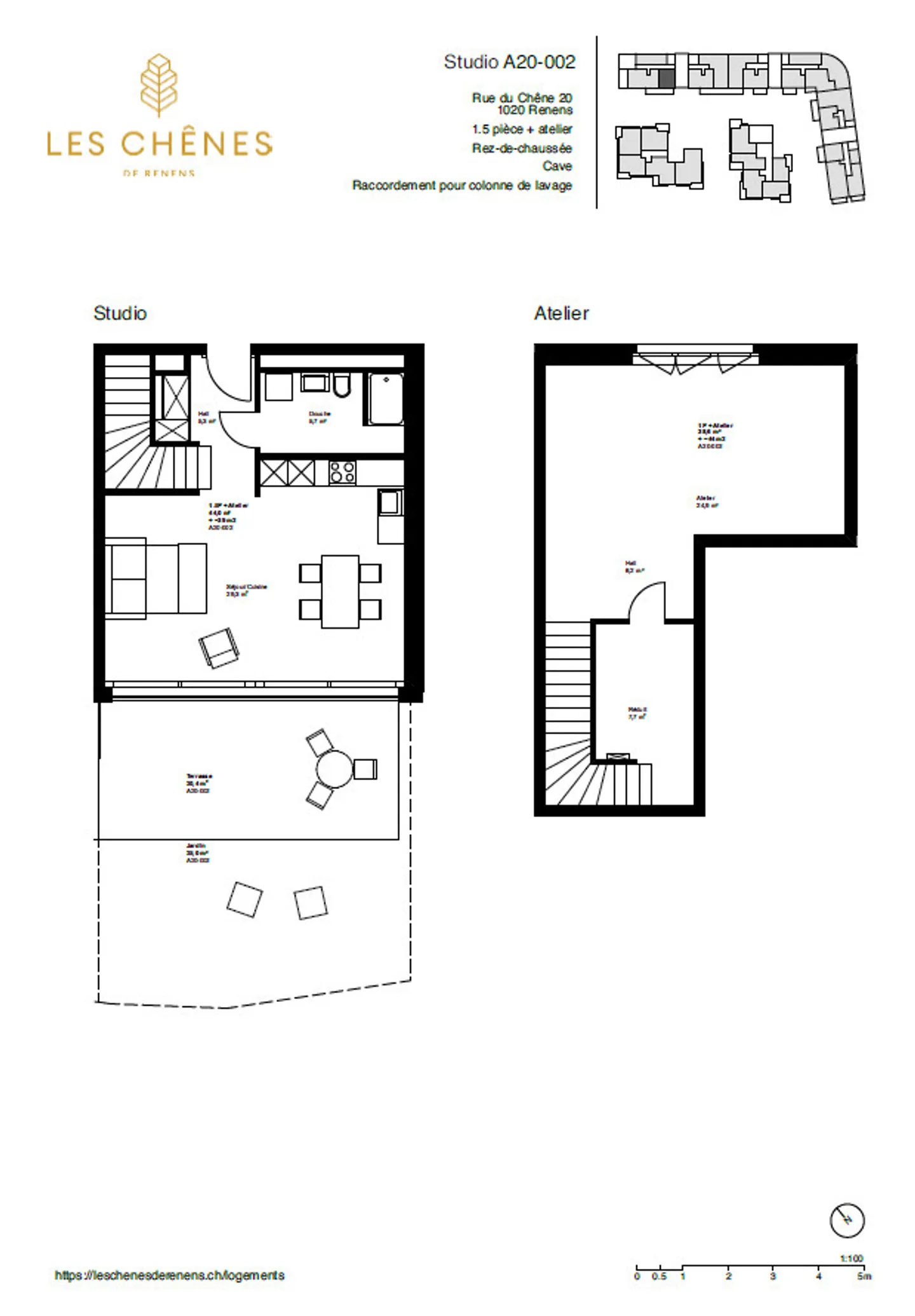
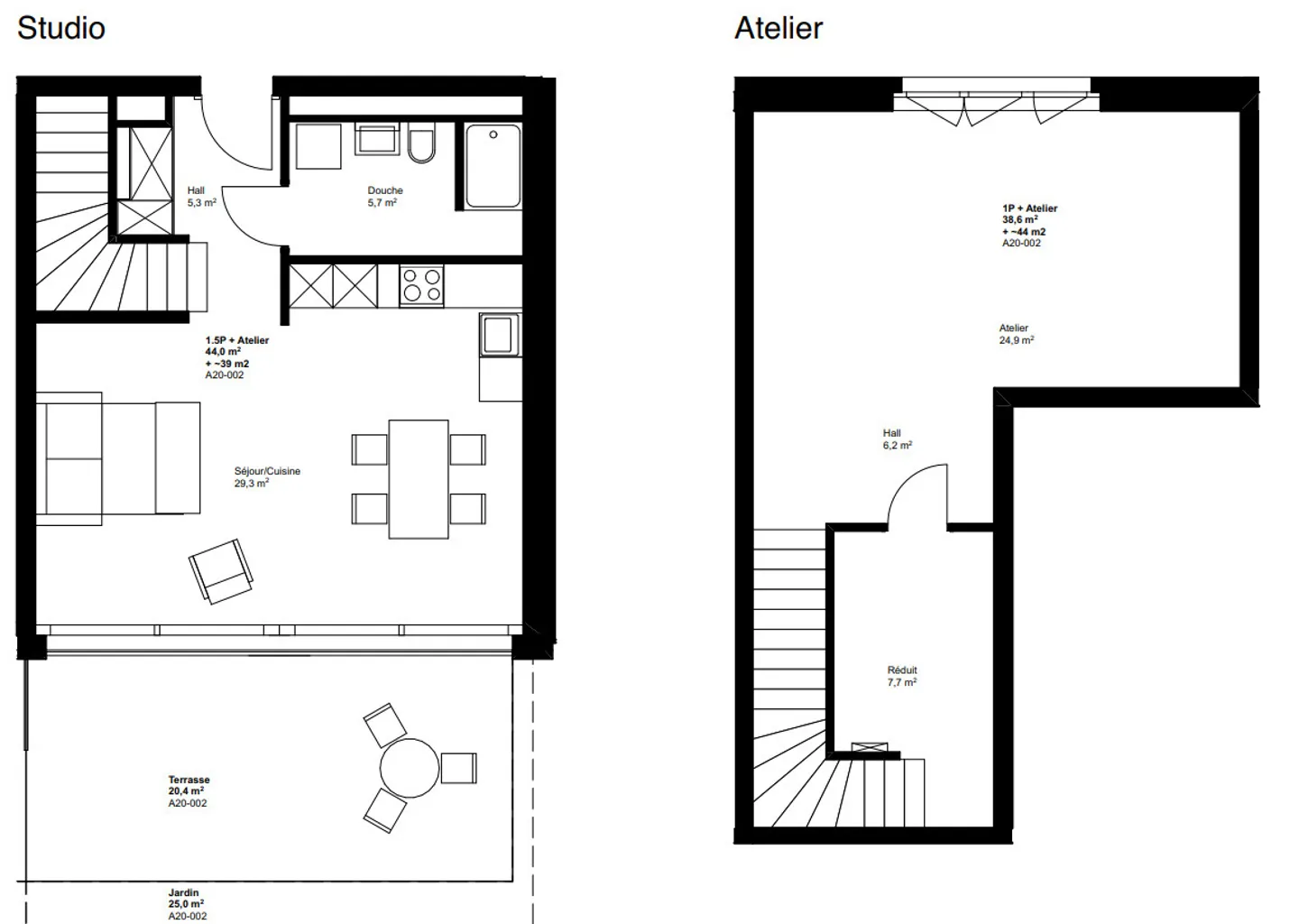
Private Terrasse und Garten
38m2 Werkstatt im Keller
Gemeinschafts-Wäscherei-Lounge
Besichtigung vereinbaren
Besichtigung buchen
1,5 zimmer neu mit werkstatt im keller - a20-002
1,5 neues Zimmer
+ Werkstatt im Keller von 38m2
+ Terrasse von 20m2 mit privatem Garten von 25m2
Lieferung voraussichtlich ab Frühjahr 2026
Entdecken Sie LES CHÊNES DE RENENS, ein neues Wohnviertel, das 175 neue Wohnungen zur Miete anbietet, von gemütlichen Studios bis hin zu geräumigen 5,5-Zimmer-Familienwohnungen, einschließlich Duplexwohnungen mit privaten Werkstätten und erschwinglichem Wohnraum. Hier findet jeder Lebensstil seinen Platz!
Alle Wohnungen zeichnen sich durch ihre großzügige Größe, ...
Kostenaufstellung
- Nettokosten
- CHF 2’180
- Zusätzliche Kosten
- CHF 280
- Gesamtkosten
- CHF 2’180
Immobiliendetails
- Verfügbar ab
- 01.05.2025
- Zimmer
- 2.5
- Baujahr
- 2025
- Wohnfläche
- 83 m²
- Etage
- EG



