Wohnung mieten - Langfeldweg 20, 8213 Neunkirch
Warum Sie diese Immobilie lieben werden
Gemütliche Schwedenofen-Atmosphäre
Geräumiger Garten zur Entspannung
Charmanter Sitzplatz unter Apfelbaum
Besichtigung vereinbaren
Besichtigung buchen
«5.5 zimmer wohnung»
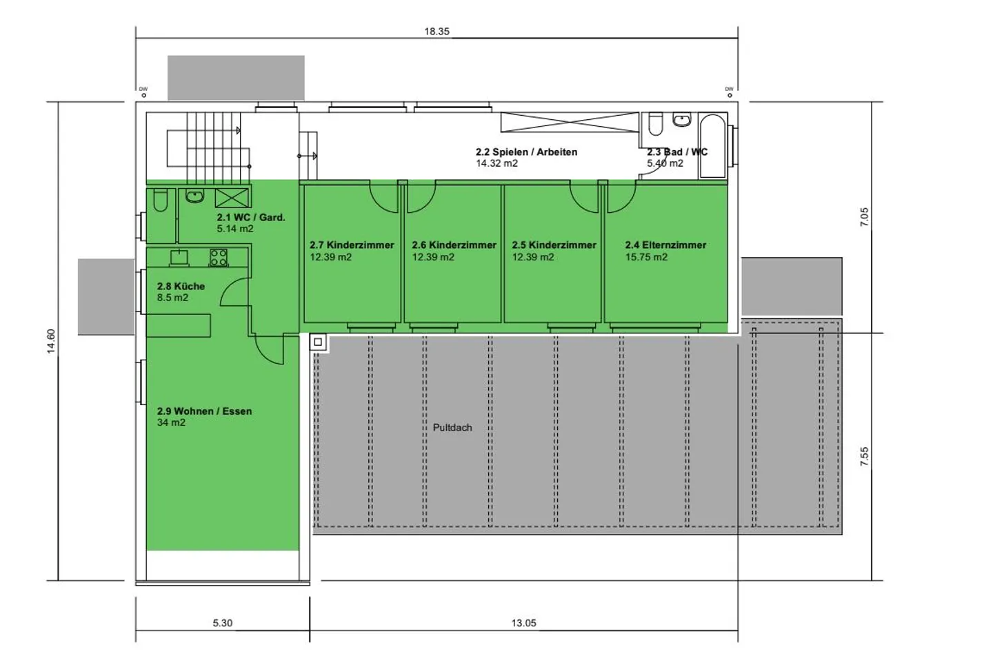
Grosszügige 5½-Zimmer-Wohnung mit Garten, Schwedenofen und viel CharmeDiese wunderschöne 5½-Zimmer-Wohnung bietet alles, was man sich zum Wohlfühlen wünscht: viel Platz, Licht, Gemütlichkeit und einen grossen Umschwung mit Garten.Highlights der Wohnung:* Grosse, helle Stube mit Schwedenofen – perfekt für gemütliche Abende* Vier Schlafzimmer mit vielseitigen Nutzungsmöglichkeiten (z. B. Büro, Gästezimmer, etc.)* Zwei Badezimmer – eines davon mit Badewanne und Dusche* Offene und helle Räume mit an...
Kostenaufstellung
- Nettokosten
- CHF 1’450
- Zusätzliche Kosten
- CHF 200
- Gesamtkosten
- CHF 1’450
Immobiliendetails
- Verfügbar ab
- Nach Vereinbarung
- Zimmer
- 5.5
- Wohnfläche
- 120 m²
- Etage
- 1.



