Wohnung mieten - Untergasse 2, 4142 Münchenstein
Warum Sie diese Immobilie lieben werden
Moderne Granitküche
Grosses Bad mit Waschturm
Ruhige zentrale Lage
Besichtigung vereinbaren
Besichtigung mit Ines buchen
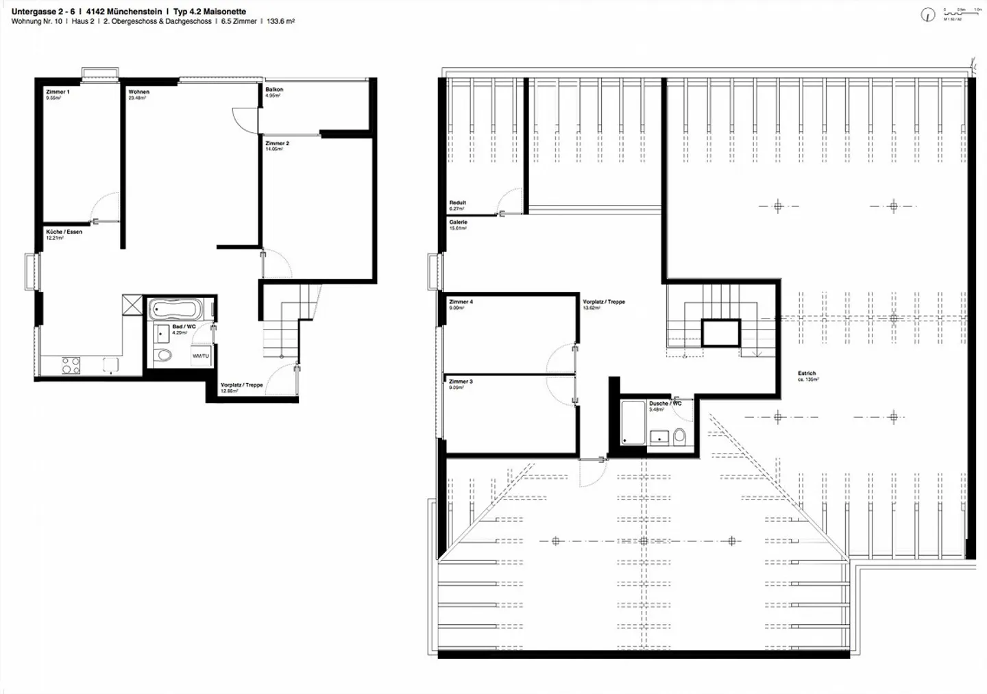
Geräumige 5.5 Zimmer Maisonette
Sanierte und familienfreundliche Maisonette-Wohnung
Moderne offene Küche mit Arbeitsflächen aus poliertem Granit, grosses Badzimmer mit eigenem Waschturm und pflegeleichtem Boden mit hochwertigen Keramikplatten, Parkettboden in der ganzen Wohnung.
Die Wohnung verfügt über einen Balkon, liegt zentral, aber gleichwohl ruhig, ideal erschlossen Richtung Basel-Stadt und Arlesheim (BL) . Öffentliche Verkehrsmittel, Einkauf und sonstiges in unmittelbarer Nähe!
Melden Sie sich für eine unverbindlich...
Kostenaufstellung
- Nettokosten
- CHF 2’950
- Zusätzliche Kosten
- CHF 250
- Gesamtkosten
- CHF 2’950
Immobiliendetails
- Verfügbar ab
- Nach Vereinbarung
- Zimmer
- 5.5
- Renovierungsjahr
- 2021
- Wohnfläche
- 134 m²
- Etage
- 3.



