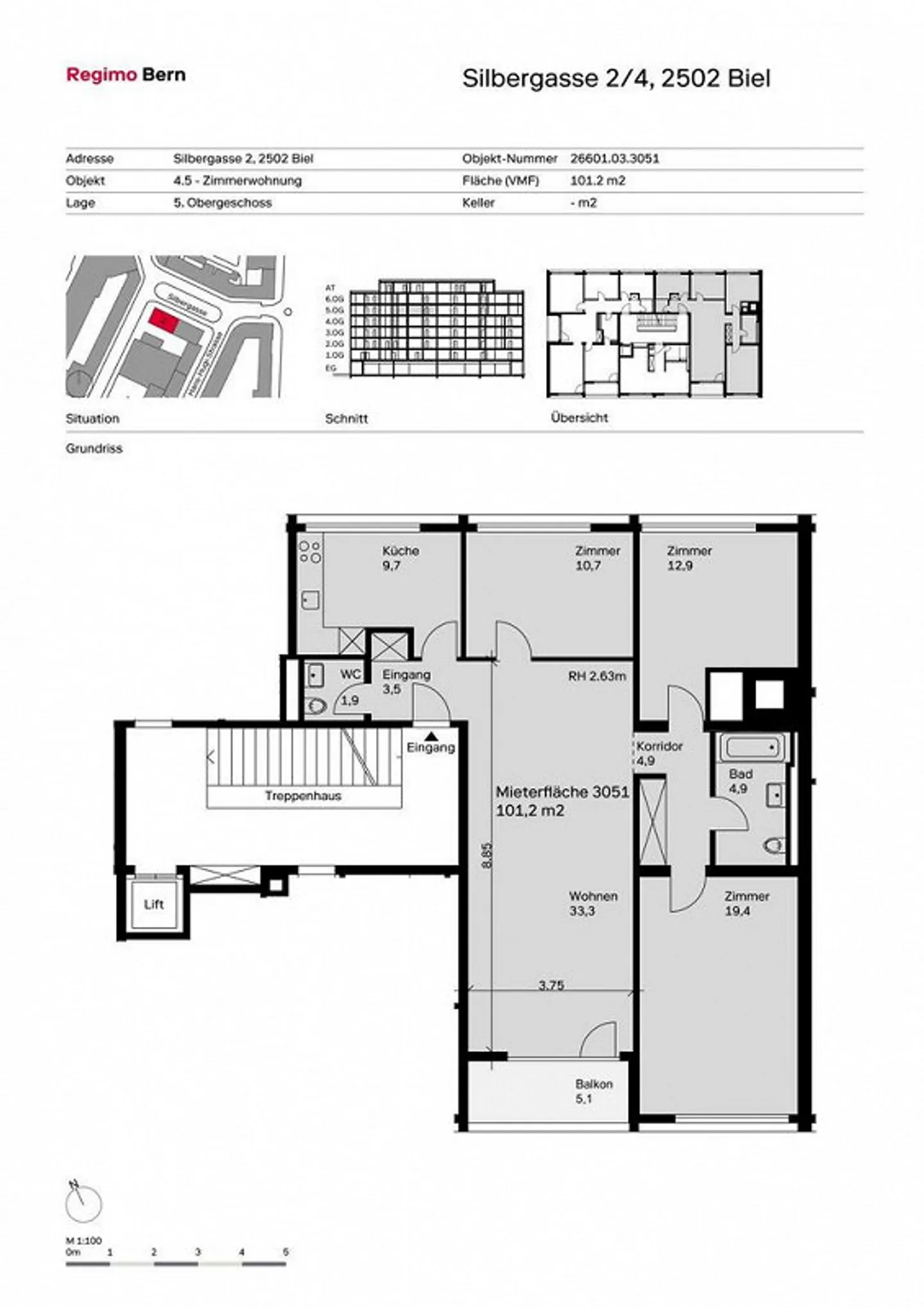
Wohnung mieten - Rue De L'argent / Silbergasse 2, 2502 Biel/Bienne
Warum Sie diese Immobilie lieben werden
Zentrale Lage
Moderne Küchenausstattung
Keine Kaution erforderlich
Besichtigung vereinbaren
Besichtigung mit Michèle buchen
MIETEN OHNE KAUTION - Wohnen im Zentrum von Biel
Diese zentral gelegene Wohnsiedlung ist voller Leben. Geniessen Sie das Leben in einer der umfassend renovierten Familienwohnungen. Im unmittelbaren Umfeld befinden sich die Schulen sowie Einkaufsmöglichkeiten für den täglichen Bedarf. Angenehm für Sie sind zudem die Anbindung der Wohnsiedlung an den öffentlichen Verkehr.
Für Ihre Wohnqualität:
- Küche mit Glaskeramik, Geschirrspüler und Granitabdeckung
- Nasszelle mit Bad/WC
- Nasszelle mit sep. WC
- Parkettboden in Wohn- und Schlafzimmer
- Plat...
Kostenaufstellung
- Nettokosten
- CHF 1'870
- Zusätzliche Kosten
- CHF 330
- Gesamtkosten
- CHF 1'870
Immobiliendetails
- Verfügbar ab
- Nach Vereinbarung
- Zimmer
- 4.5
- Baujahr
- 1960
- Renovierungsjahr
- 2019
- Wohnfläche
- 101 m²
- Etage
- 5.


