1 / 9

Loft mieten - Alterswilerstrasse 19, 8573 Siegershausen

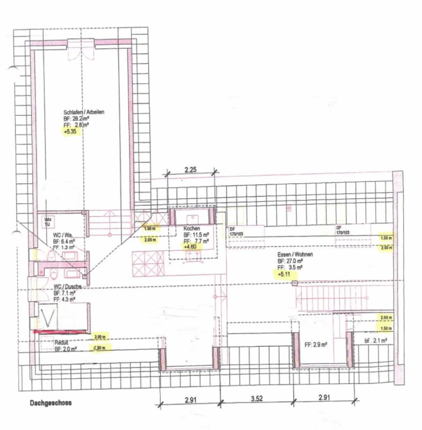
2.5 Zimmer • 89 m² • 2. Etage
CHF 1’790.-
CHF 241 m² / year

Warum Sie diese Immobilie lieben werden

Einzigartige Mischung aus Alt und Neu

Hochwertige Küchenausstattung

Gemütlicher Garten für Sommerabende

Besichtigung vereinbaren

Besichtigung mit Gschwind buchen

Gschwind
immokanzlei AG

Exklusive loftwohnung für singles oder paare

Exklusive Loftwohnung mit charmantem Stil

Diese exklusive Loftwohnung in Siegershausen überzeugt durch ihre einzigartige Mischung aus Alt und Neu. Charmante Dachbalken in Kombination mit der Mordernen Ausstattung der Wohnung verleihen Ihrem Zuhause pures Wohngefühl. Die hochwertige Küche mit viel Stauraum, das Badezimmer mit begehbarer Dusche und eigenem Waschturm, sind nur einige der vielen Vorteile dieser einzigartigen Loftwohnung.

- Da die Wohnung keinen Balkon hat, gehört ein kleiner Gartenant...

Immobiliendetails

Verfügbar ab
Nach Vereinbarung
Zimmer
2.5
Wohnfläche
89
Etage
2.

Eigenschaften

Parkplätze

Agentur

immokanzlei AG
Adresse:Kreuzlingen, Rheinstrasse, 8280
Ref: 2 Zi. Whg. im DG (Loft).26e234eb-a843-11f0-89d7-069ae14c7a06

Standort

Alterswilerstrasse 19, 8573 Siegershausen

Quellen