1 / 10

Wohnung mieten - Chisenmattweg 18b, 3510 Konolfingen

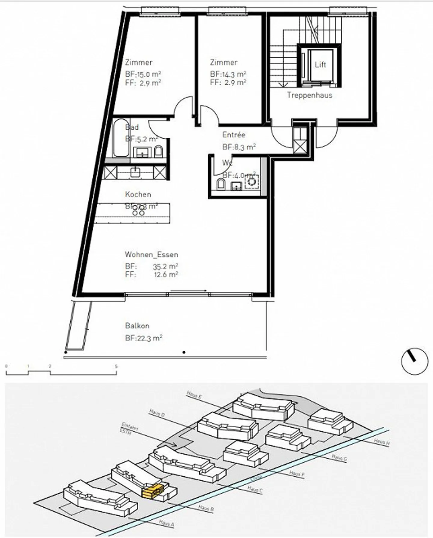
3.5 Zimmer • 89 m² • Erdgeschoss
CHF 1’995.-
CHF 269 m² / year

Warum Sie diese Immobilie lieben werden

Geräumiger Balkon von 22.3m2

Moderne Küche mit Kochinsel

Pflegeleichte Parkettböden

Besichtigung vereinbaren

Besichtigung mit Jara buchen

Jara Sidler
as immobilien ag

Wohnung in grüner umgebung gesucht?

Wir vermieten per 1. Februar 2026 oder nach Vereinbarung eine 3.5-Zimmer-Wohnung à 89.2m2 im Erdgeschoss, welche Ihnen die folgenden Vorzüge bietet:

* Moderne, offene Küche mit viel Stauraum und einer Kochinsel

* Pflegeleichte Parkettböden in Wohn- und Schlafzimmern

* Badezimmer mit Badewanne und dunklem Plattenboden

* sep. Gäste-WC mit Wasseranschluss für eine Waschmaschine / Tumbler

* Eingangsbereich mit Garderobe und Einbauschränken

* grosszügigem Balkon à 22.3m2 vorhanden

* Eigenes Kellerabteil mit...

Immobiliendetails

Verfügbar ab
01.02.2026
Zimmer
3.5
Baujahr
2014
Wohnfläche
89
Etage
EG
Geschosse
3

Eigenschaften

Garage
Balkon
Parkplätze
Swimmingpool
Lift
Kamin
Kabel-TV
Waschmaschine
Wäschetrockner
Minergie-zertifiziert
Rollstuhlgerecht
Kinderfreundlich
Haustiere erlaubt

Agentur

as immobilien ag
Adresse:Murtenstrasse 18, 3203, Mühleberg
Ref: asib.is24-8171369

Standort

Chisenmattweg 18b, 3510 Konolfingen

Quellen