Wohnung mieten - Alte Landstrasse 18, 4455 Zunzgen
Warum Sie diese Immobilie lieben werden
Geräumige separate Küche
Zwei sonnige Balkone
Kinderfreundliche Umgebung
Besichtigung vereinbaren
Besichtigung buchen
Zeigt, was möglich ist
Für die Besichtigung: Füllen Sie das Kontaktformular inklusive Mailadresse aus. Danach erhalten Sie eine Mail mit allen Informationen zur Besichtigung.
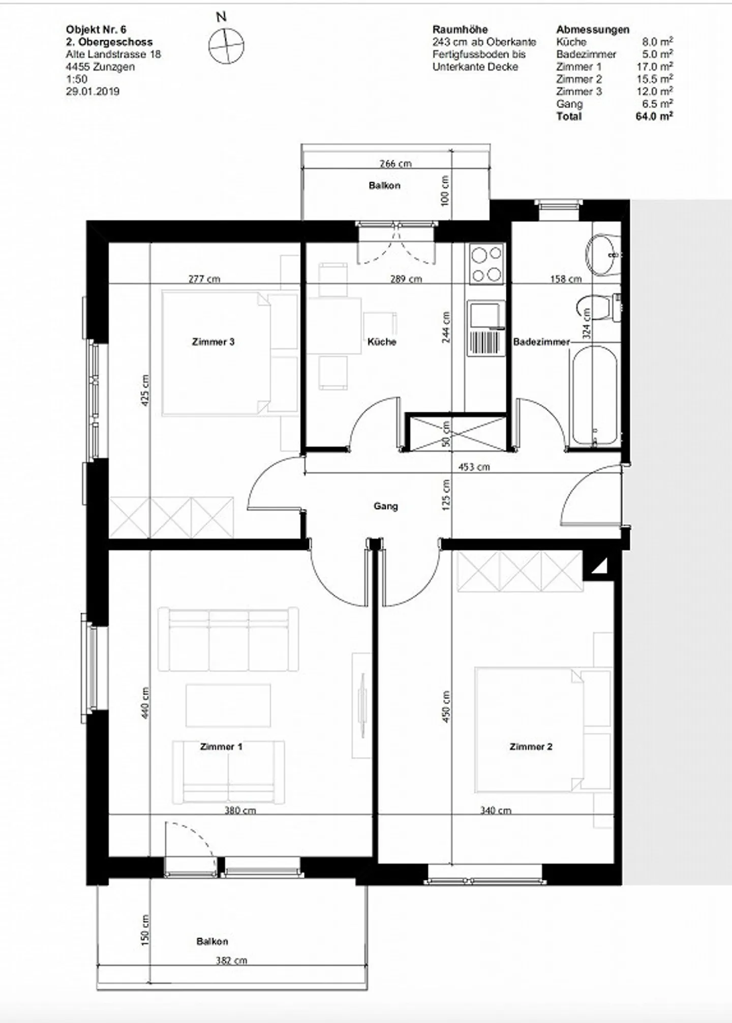
Beschreibung des Objekts: Eine sehr gut ausgestattete Wohnung mit einem Einbauschrank im Eingangsbereich. Geräumige und separate Einbauküche. Gesamte Wohnung neu gestrichen. 2x Balkon.
Angaben zum Objekt:
- Waschen: In der gemeinsamen Waschküche
- Waschplan: Mindestens ein Mal pro Woche. Waschmaschine, Secomat
- Esszimmer: Kühlschrank, Kochherd, Dam...
Kostenaufstellung
- Nettokosten
- CHF 1’260
- Zusätzliche Kosten
- CHF 220
- Gesamtkosten
- CHF 1’260
Immobiliendetails
- Verfügbar ab
- Nach Vereinbarung
- Zimmer
- 3
- Baujahr
- 1965
- Wohnfläche
- 64 m²
- Etage
- 1.
- Geschosse
- 4



