Wohnung mieten - Sandbühlstrasse 17, 5613 Hilfikon
Warum Sie diese Immobilie lieben werden
Atemberaubender Bergblick
Private Außenoase
Rustikaler Steinbrunnen
Besichtigung vereinbaren
Besichtigung mit Aabid buchen
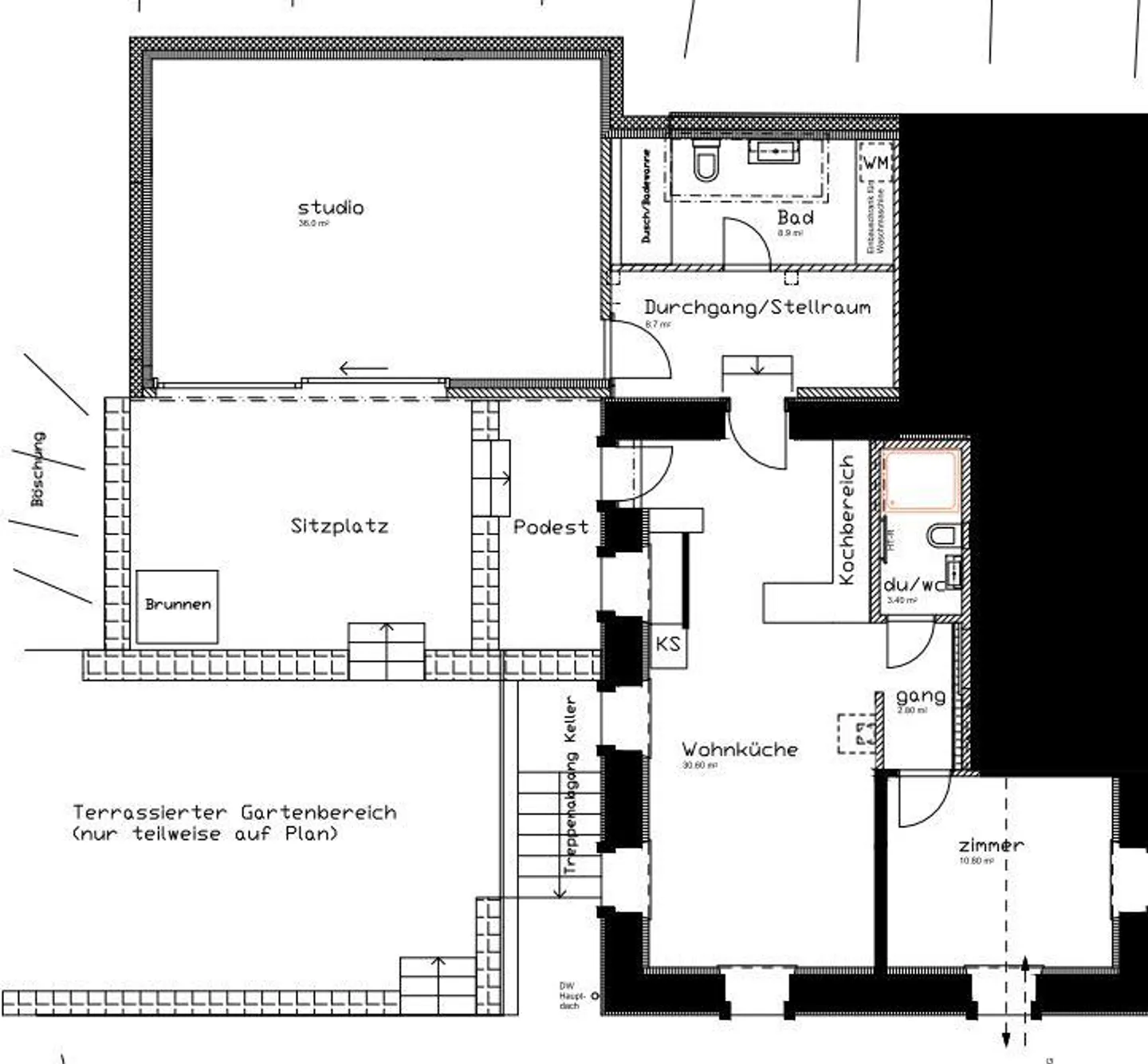
Draussen & drinnen wohnen, exklusive Lage, mediterranes Ambiente
Das Mietobjekt befindet sich an sonniger Hanglage mit Aussicht auf Sarmenstorf und die Alpen. Es umfasst viel private Umgebungsfläche, um auch draussen zu wohnen.
-
Wer eine Erholungsoase sucht und sich gerne in der Natur aufhält, ist hier genau richtig. Rund 100m2 Wohnfläche auf 3 ½ Zimmern im Hochparterre (siehe Grundriss) mit Ausrichtung ins Grüne.
-
Dazu 100 m2 Ausssenfläche, davon 30 m2 grosser eigener Sitzplatz mit mediterranem Ambiente, 70 m2 eigene Grünfläche (Rasen) und schöne Bepflanzung m...
Kostenaufstellung
- Nettokosten
- CHF 2'490
- Zusätzliche Kosten
- CHF 290
- Gesamtkosten
- CHF 2'490
Immobiliendetails
- Verfügbar ab
- Nach Vereinbarung
- Zimmer
- 3.5
- Renovierungsjahr
- 2025
- Wohnfläche
- 100 m²
- Etage
- 11.


