Wohnung mieten - Chisenmattweg 16b, 3510 Konolfingen
Warum Sie diese Immobilie lieben werden
Moderne offene Küche
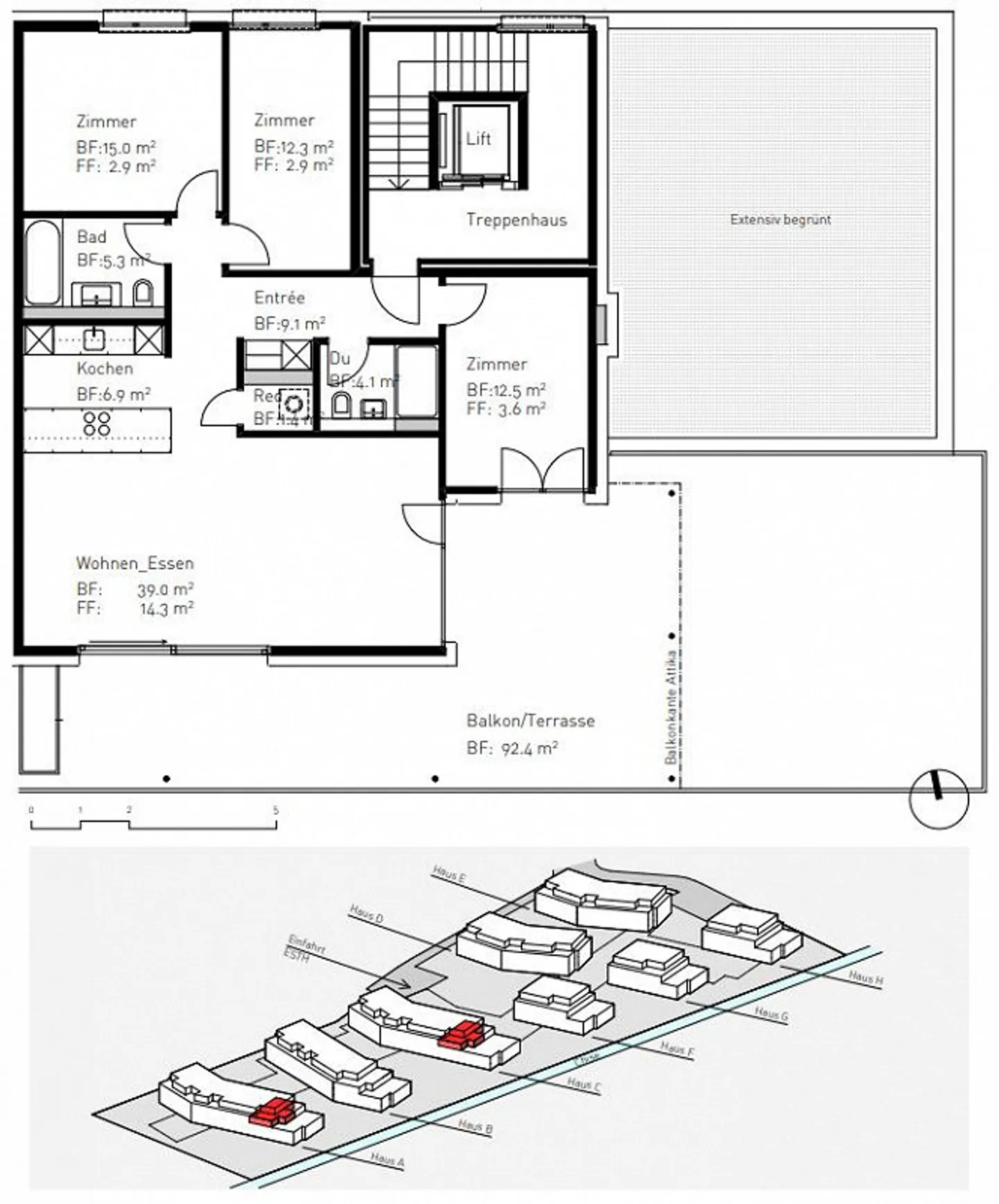
Grosszügige Terrasse von 92.4m2
Stilvolles Parkett
Besichtigung vereinbaren
Besichtigung mit Jara buchen
Ihr Rückzugsort über den Dächern
Wir vermieten per 1. März 2026 oder nach Vereinbarung eine grosszügige 4.5-Zimmer-Attikawohnung. Die Wohnung bietet Ihnen die folgenden Vorzüge:
- grosszügige, moderne und offene Küche mit Glaskeramikfeld, Backofen, Geschirrspüler und Kühlschrank inkl. drei separaten Gefrierfächer
- Nasszellen mit Badewanne und Dusche
- Eingangsbereich mit Garderobe und Einbauschränken
- Parkettboden in Wohn- und Schlafzimmern, Plattenboden in den restlichen Räumen
- Reduit mit Wasseranschluss für eine Waschmasch...
Kostenaufstellung
- Nettokosten
- CHF 2’638
- Zusätzliche Kosten
- CHF 340
- Gesamtkosten
- CHF 2’638
Immobiliendetails
- Verfügbar ab
- Nach Vereinbarung
- Zimmer
- 4.5
- Baujahr
- 2014
- Wohnfläche
- 106 m²
- Etage
- 2.
- Geschosse
- 3



