Wohnung mieten - Billeterstrasse 15, 8044 Zürich
Warum Sie diese Immobilie lieben werden
Helle Wohnräume
Grosser Balkon
Moderne Küchenausstattung
Besichtigung vereinbaren
Besichtigung mit Michelle buchen
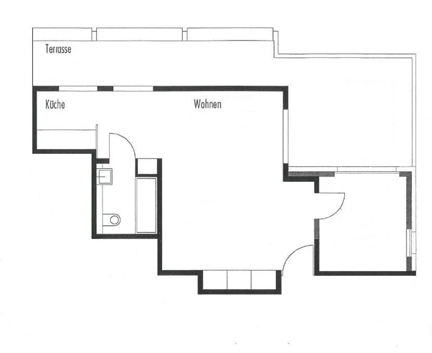
Grosszügige 2.5-ZWG am Zürichberg
Wir vermieten eine helle 2.5-Zimmer-Wohnung im 2. OG. Die Wohnung verfügt über die nachstehende Ausstattung:
- Küche mit Geschirrspüler, Glaskeramik und Granitabdeckung
- Bad mit Badewanne
- Einbauschränke
- Wohn- und Schlafräume mit Parkett
- Küche und Bad mit Bodenplatten
- Grosser Balkon
- Kellerabteil
Die Wohnung befindet sich zwei Gehminuten von der Tramhaltestelle Susenbergstrasse entfernt. Der Hauptbahnhof ist innert 15 Minuten mit dem Tram erreichbar.
Wir freuen uns auf Ihre Kontaktaufnahme...
Kostenaufstellung
- Nettokosten
- CHF 2’390
- Zusätzliche Kosten
- CHF 190
- Gesamtkosten
- CHF 2’390
Immobiliendetails
- Verfügbar ab
- Nach Vereinbarung
- Zimmer
- 2.5
- Baujahr
- 1951
- Renovierungsjahr
- 2010
- Wohnfläche
- 46 m²
- Etage
- 2.



