Wohnung mieten - Route D'oron 14b, 1010 Lausanne
Warum Sie diese Immobilie lieben werden
Heller offener Wohnbereich
Hochwertige Ausstattungen
Nah an Natur und Annehmlichkeiten
Besichtigung vereinbaren
Besichtigung buchen
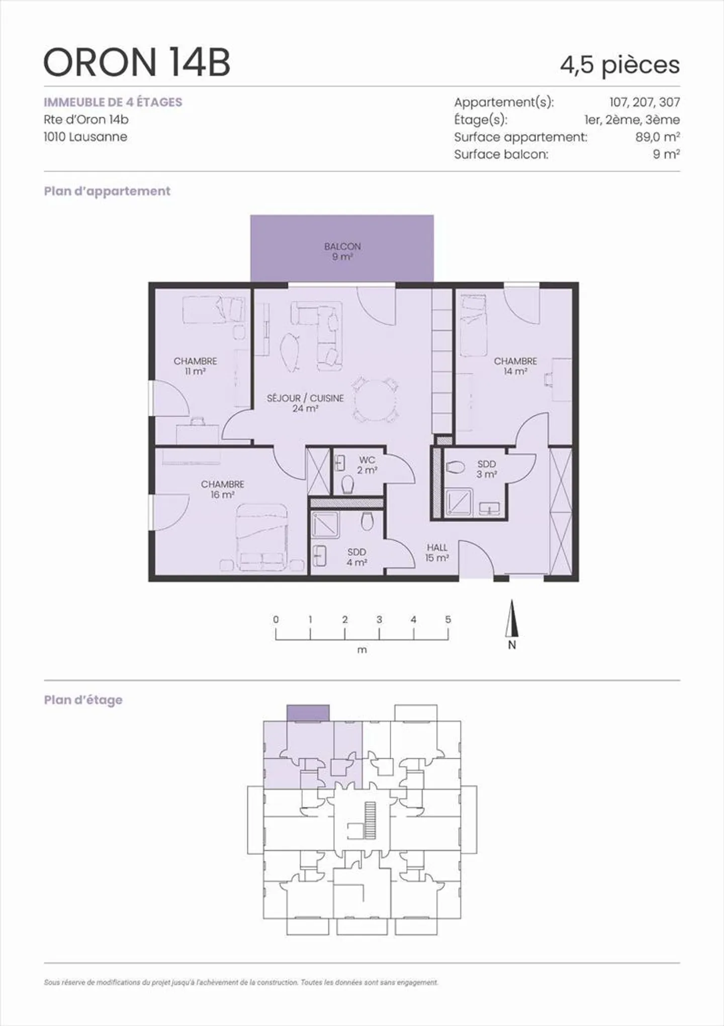
4,5-zimmer-wohnung
Letzte neue 4,5-Zimmer-Wohnung, die Sie nicht verpassen sollten!
Nicht zu verpassen!
Letzte neue 4,5-Zimmer-Wohnung von ca. 90 m2 im 3. Stock eines Gebäudes mit 35 Wohnungen, das derzeit im Bau ist, ab dem 1. Dezember 2025 verfügbar.
Ideale Lage im Stadtteil Sallaz, einer ruhigen und grünen Umgebung, und in unmittelbarer Nähe zu allen Annehmlichkeiten, das Gebäude ist weniger als 2 Minuten zu Fuß von Geschäften und der U-Bahn-Station Sallaz entfernt.
Mit hochwertiger Ausstattung, Materialien und...
Kostenaufstellung
- Nettokosten
- CHF 2’890
- Zusätzliche Kosten
- CHF 260
- Gesamtkosten
- CHF 2’890
Immobiliendetails
- Verfügbar ab
- Nach Vereinbarung
- Zimmer
- 4.5
- Badezimmer
- 3
- Wohnfläche
- 90 m²



