Wohnung mieten - Route D'oron 14b, 1010 Lausanne
Warum Sie diese Immobilie lieben werden
Heller offener Wohnbereich
Hochwertige Ausstattungen
Balkon mit schöner Aussicht
Besichtigung vereinbaren
Besichtigung buchen
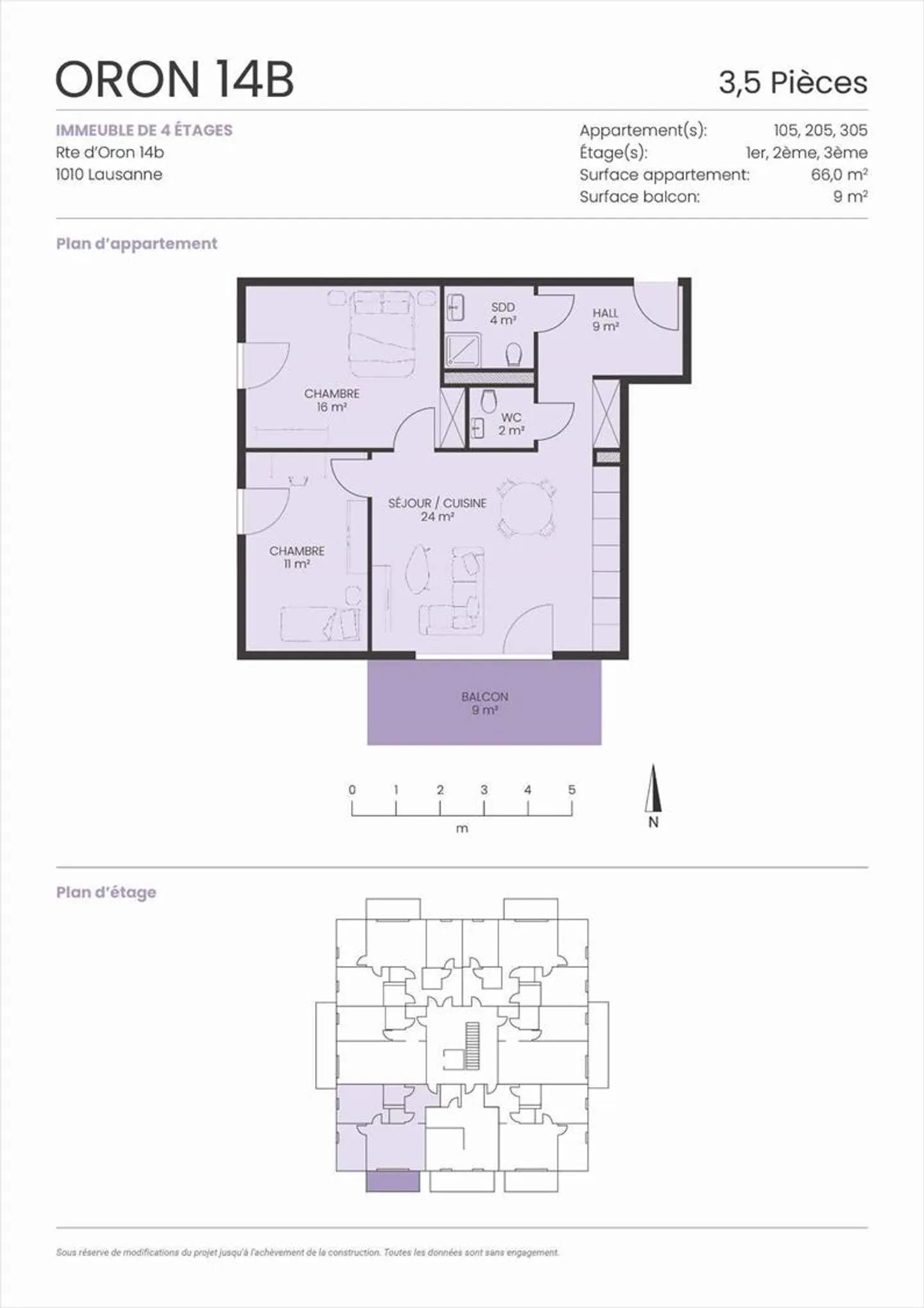
3,5-zimmer-wohnung
Letzte neue 3,5-Zimmer-Wohnung, die Sie nicht verpassen sollten!
Nicht zu verpassen!
Letzte neue 3,5-Zimmer-Wohnung von etwa 66 m2, die sich im 2. Stock eines derzeit im Bau befindlichen Gebäudes mit 35 Wohneinheiten befindet, ab dem 1. Dezember 2025 verfügbar.
Ideale Lage im Stadtteil Sallaz, einer ruhigen und grünen Umgebung, und in unmittelbarer Nähe zu allen Annehmlichkeiten, das Gebäude ist weniger als 2 Minuten zu Fuß von Geschäften und der U-Bahn-Station Sallaz entfernt.
Mit hochwertiger ...
Kostenaufstellung
- Nettokosten
- CHF 2’250
- Zusätzliche Kosten
- CHF 190
- Gesamtkosten
- CHF 2’250
Immobiliendetails
- Verfügbar ab
- Nach Vereinbarung
- Zimmer
- 3.5
- Badezimmer
- 2
- Wohnfläche
- 66 m²



