Penthouse mieten - Gerenhalde 14, 8317 Tagelswangen
Warum Sie diese Immobilie lieben werden
Helles offenes Wohnen
Stilvolle Küche mit Balkon
Geräumige Stauraumoptionen
Besichtigung vereinbaren
Besichtigung mit Cagienard buchen
Charmante 3.5 zimmer-dachwohnung an ruhiger lage
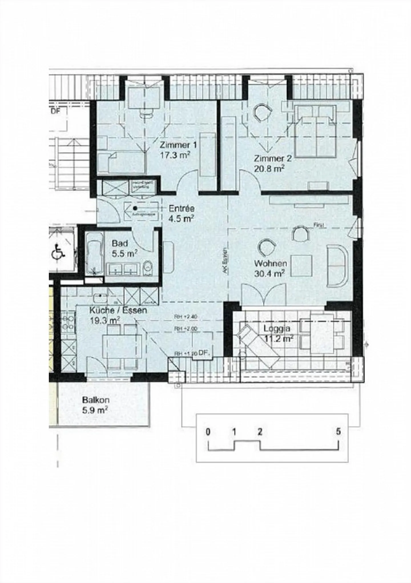
Entdecken Sie diese lichtdurchflutete Dachwohnung im 3. Stock in der ruhigen Gemeinde Tagelswangen. Mit 98m2 Wohnfläche bietet diese Wohnung den perfekten Rückzugsort.
Die Wohnung überzeugt durch:
Wohnzimmer: offener Grundriss, Laminatboden, hohe Decke. Loggia mit schöner Aussicht inklusive.
Küche: stilvolle Ausstattung (inkl. Waschmaschine / Trockner) und separatem Balkon.
Schlafzimmer / Zimmer: Laminatboden, Einbauschränke.
Badezimmer: Doppellavabo, grosser Spiegel, Plattenboden
Stauraum: eigener, g...
Kostenaufstellung
- Nettokosten
- CHF 2’473
- Zusätzliche Kosten
- CHF 380
- Gesamtkosten
- CHF 2’473
Immobiliendetails
- Verfügbar ab
- Nach Vereinbarung
- Zimmer
- 3.5
- Baujahr
- 2010
- Wohnfläche
- 98 m²
- Etage
- 3.
- Geschosse
- 3



