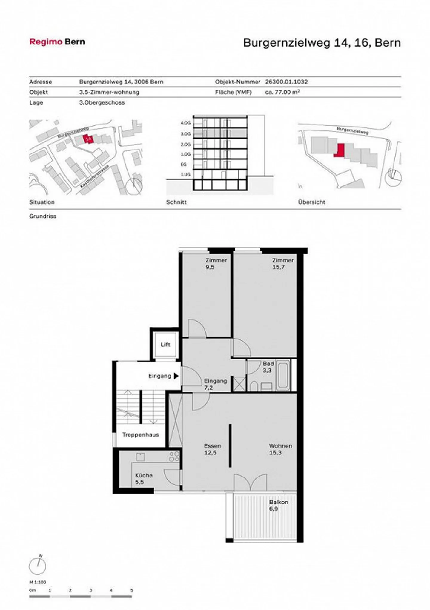
Wohnung mieten - Burgernzielweg 14, 3006 Bern
Warum Sie diese Immobilie lieben werden
Zentrale Lage im Grünen
Keine Kaution erforderlich
Geräumig mit moderner Küche
Besichtigung vereinbaren
Besichtigung mit Michèle buchen
MIETEN OHNE KAUTION - Gemütliche Wohnung in Zentrumsnähe
Sie werden es möglicherweise bereuen, wenn Sie zu spät kommen. Denn diese Wohnung befindet sich an zentraler Lage und dennoch im Grünen. Sie ist geräumig und überzeugt durch ein faires Preis-Leistungsverhältnis.
Für Ihre Wohnqualität:
- Küche mit Glaskeramikherd und Geschirrspüler
- Nasszelle mit Bad/WC
- Parkettboden in Wohn- und Schlafzimmer
- PVC-Boden in Küche und Nasszellen
- Wandschrank im Korridor
- Balkon
- Kellerabteil
-Lift
Bei diesem Mietobjekt müssen Sie nicht wie üblich drei Monatsmieten als...
Kostenaufstellung
- Nettokosten
- CHF 1'840
- Zusätzliche Kosten
- CHF 250
- Gesamtkosten
- CHF 1'840
Immobiliendetails
- Verfügbar ab
- Nach Vereinbarung
- Zimmer
- 3.5
- Baujahr
- 1961
- Renovierungsjahr
- 1991
- Etage
- 3.



