Wohnung mieten - Rue Schaub 13, 1202 Genève
Warum Sie diese Immobilie lieben werden
Heller Wohnraum
Funktionale Aufteilung
Nahe öffentlicher Verkehrsmittel
Besichtigung vereinbaren
Besichtigung buchen
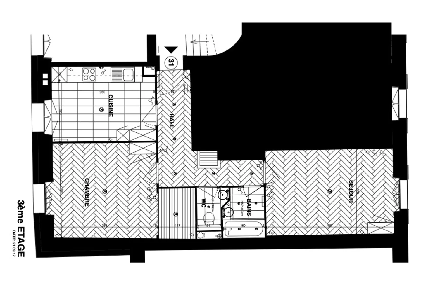
3-Zimmer-Wohnung mit Alcove im Herzen von Genf
In der 3. Etage eines charaktervollen Gebäudes aus dem frühen 20. Jahrhundert gelegen, besticht diese 3-Zimmer-Wohnung mit Alcove durch ihren alten Charme und ihre funktionale Aufteilung
Sie besteht aus :
Einem hellen Wohnzimmer
Einem Schlafzimmer + einer Alcove
Einer ausgestatteten Küche
Einem Badezimmer mit Platz für eine Waschmaschine
Einem separaten WC
Einem Verteilungshalle
Praktische und gut organisierte Wohnung, ideal für ein Paar
Ideale Lage, in der Nähe von öffentlichen Verkehrsmitt...
Kostenaufstellung
- Nettokosten
- CHF 2'450
- Zusätzliche Kosten
- CHF 100
- Gesamtkosten
- CHF 2'450
Immobiliendetails
- Verfügbar ab
- 04.05.2026
- Zimmer
- 3
- Etage
- 3.



