Wohnung mieten - Katzenbachstrasse 13, 8492 Wila
Warum Sie diese Immobilie lieben werden
Idyllische Wanderwege in der Nähe
Ländliche und zentrale Lage
Haustierfreundliche Umgebung
Besichtigung vereinbaren
Besichtigung mit Thomas buchen
Renovierter altbau mit liebe zum detail
Highlights:
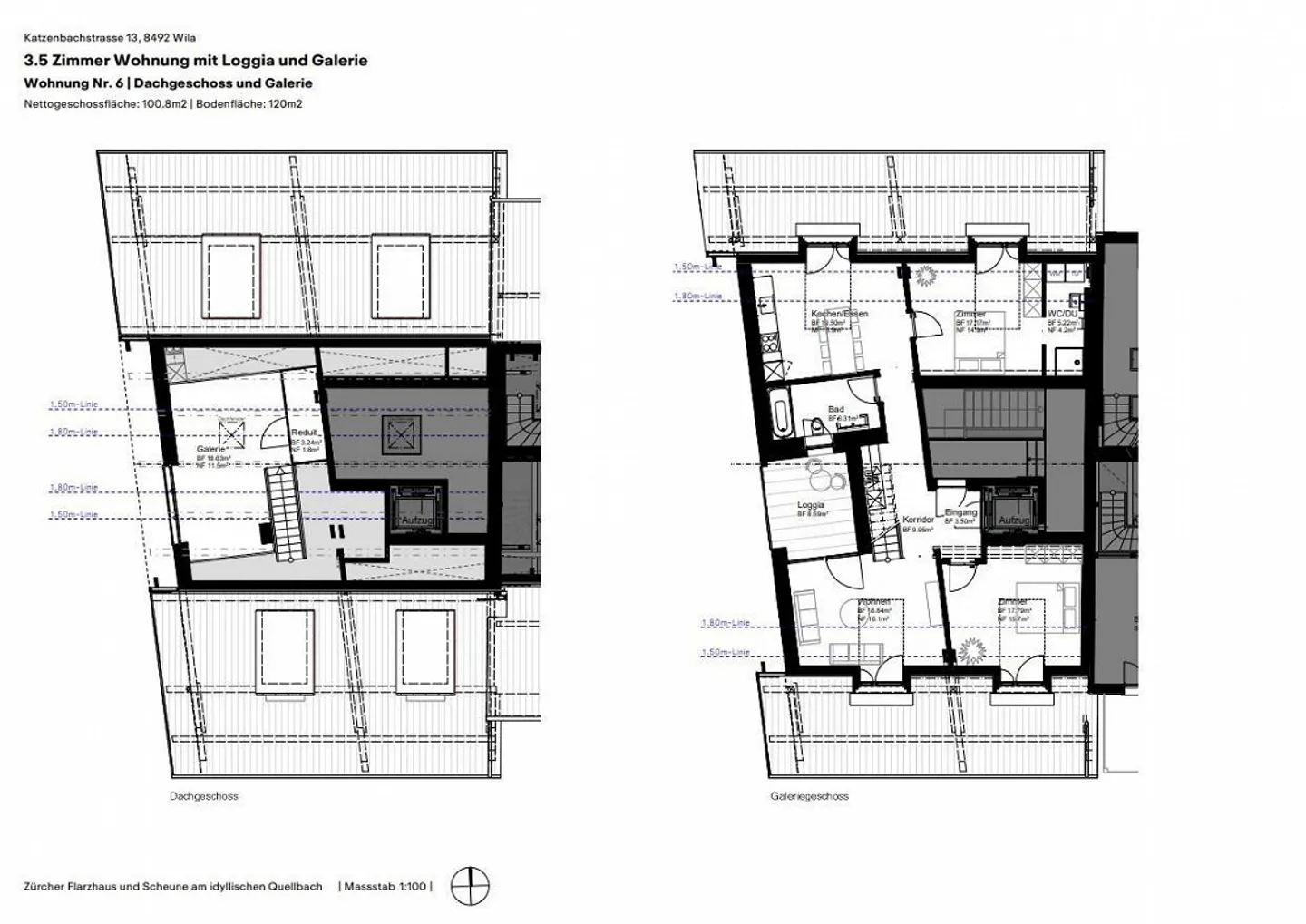
- Maisonettewohnung mit Galerie & Loggia
- Wandern & Erholen direkt vor der Haustür zahlreiche Spazier- und Wanderwege entlang der Töss und durch die idyllische Zürcher Oberländer Landschaft.
- Ländlich und doch zentral Wila liegt eingebettet im Grünen, mit guten Verbindungen nach Winterthur und Rüti.
Haustiere sind willkommen.
Für einen Besichtigungstermin oder weitere Informationen zur Wohnung kontaktieren Sie uns bitte via Kontaktformular. Vielen Dank
Wichtiger Hinweis:
- Die L...
Kostenaufstellung
- Nettokosten
- CHF 3’275
- Zusätzliche Kosten
- CHF 260
- Gesamtkosten
- CHF 3’275
Immobiliendetails
- Verfügbar ab
- Nach Vereinbarung
- Zimmer
- 3.5
- Baujahr
- 2026
- Wohnfläche
- 100 m²
- Etage
- 2.



