Wohnung mieten - Sonnhaldestrasse 12, 9533 Kirchberg SG
Warum Sie diese Immobilie lieben werden
Moderne offene Küche
Balkon nach Westen
Eleganter Parkettboden
Besichtigung vereinbaren
Besichtigung buchen
Sonnige Wohnung mit traumhaftem Ausblick auf den Alpstein
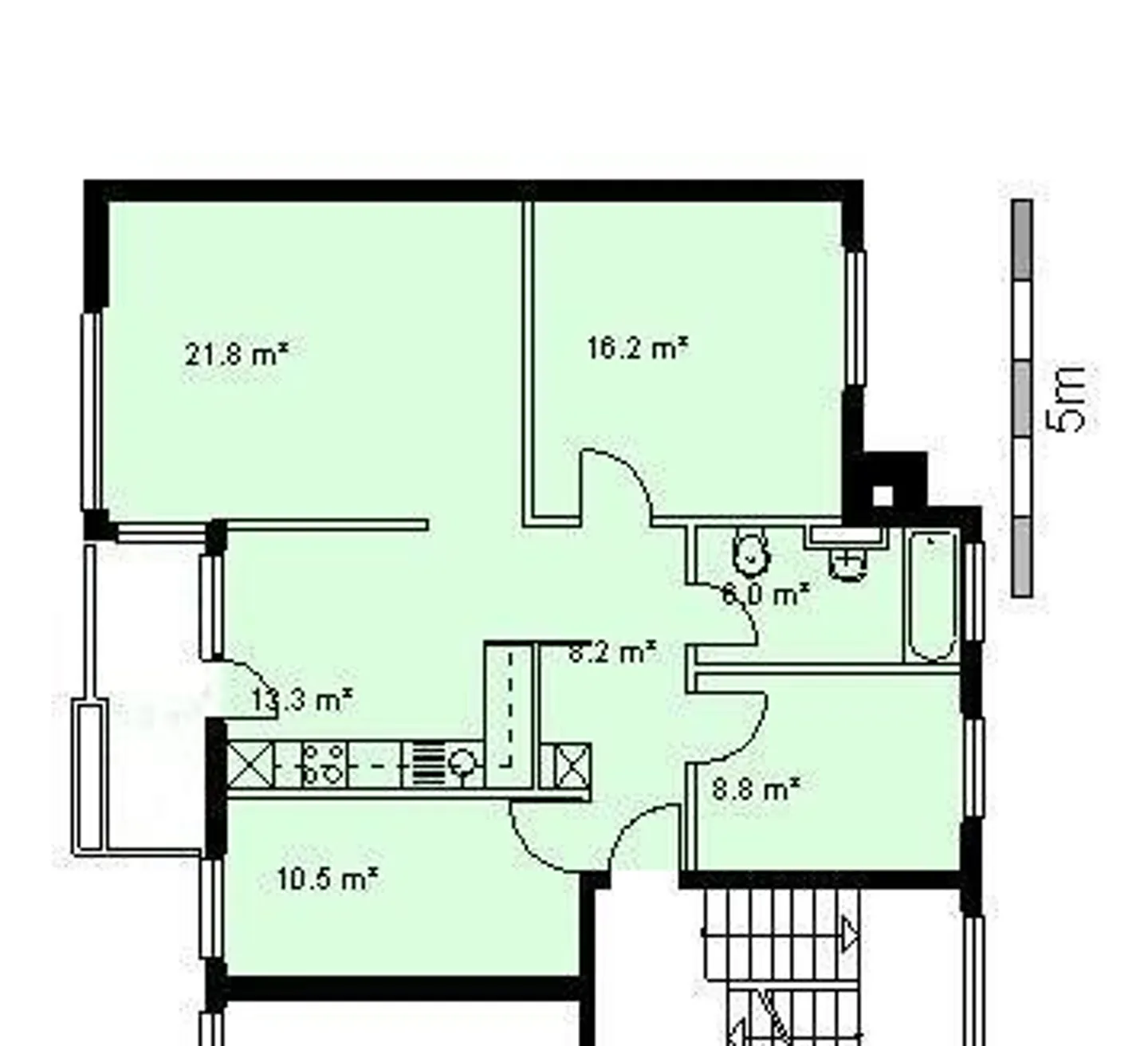
Wir vermieten per 01. Mai 2026 an traumhafter Lage eine moderne 4.5 Zimmer-Wohnung im 2. Obergeschoss.
Die Wohnung ist wie folgt ausgestattet:
\- Parkettboden im Wohn-, Ess- und Schlafbereich
\- offene Küche mit Geschirrspüler, Glaskeramikherd, Backofen und Kühlschrank
\- Bad/WC mit dunklem Plattenbelag
\- Einbauschränke
\- Balkon (Westseite)
Eine Einzelgarage kann für CHF 115.00 pro Monat dazu gemietet werden.
Wir freuen uns auf Ihre Kontaktanfrage.
(Diese Fotos können leicht abweichen)
Grundrissplan:
Kei...
Kostenaufstellung
- Nettokosten
- CHF 1’440
- Zusätzliche Kosten
- CHF 290
- Gesamtkosten
- CHF 1’440
Immobiliendetails
- Verfügbar ab
- 01.05.2026
- Zimmer
- 4.5
- Baujahr
- 1983
- Wohnfläche
- 85 m²
- Etage
- 2.



