Wohnung mieten - Parkstrasse 12, 6410 Goldau
Warum Sie diese Immobilie lieben werden
Frisch renovierte Innenräume
Geräumige Dachterrasse
Ideale zentrale Lage
Besichtigung vereinbaren
Besichtigung mit Steiner buchen
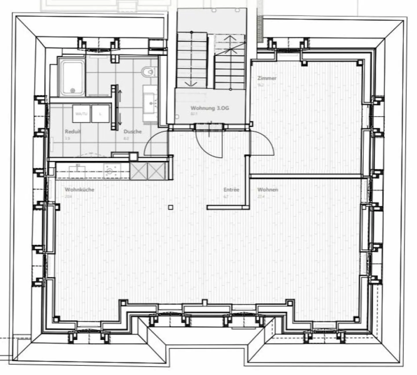
2½-Zimmer-Wohnung im Herzen von Goldau
Hier lässt es sich wohnen
Die Wohnung an der Parkstrasse 12 liegt im Dorzentrum von Goldau und nur zwei Gehminuten vom SBB-Knotenpunkt Arth-Goldau entfernt. Von hier aus bestehen direkte Verbindungen nach Basel, Luzern, Zürich, ins Tessin sowie mit der Südostbahn in die Ostschweiz. Auch für den Individualverkehr ist die Lage ideal: Der Autobahnanschluss an die A4 ist in nur vier Fahrminuten erreichbar.
In unmittelbarer Nähe finden Sie alles für den täglichen Bedarf. An der belebten Parkstrasse ste...
Kostenaufstellung
- Nettokosten
- CHF 2’370
- Zusätzliche Kosten
- CHF 240
- Gesamtkosten
- CHF 2’370
Immobiliendetails
- Verfügbar ab
- Nach Vereinbarung
- Zimmer
- 2.5
- Wohnfläche
- 82 m²
- Etage
- 3.



