Wohnung mieten - Brändlihangstrasse 12, 9435 Heerbrugg
Warum Sie diese Immobilie lieben werden
Helle und sonnige Gestaltung
Ruhige Waldesnähe
Privater Sitzplatz im Freien
Besichtigung vereinbaren
Besichtigung mit Alge buchen
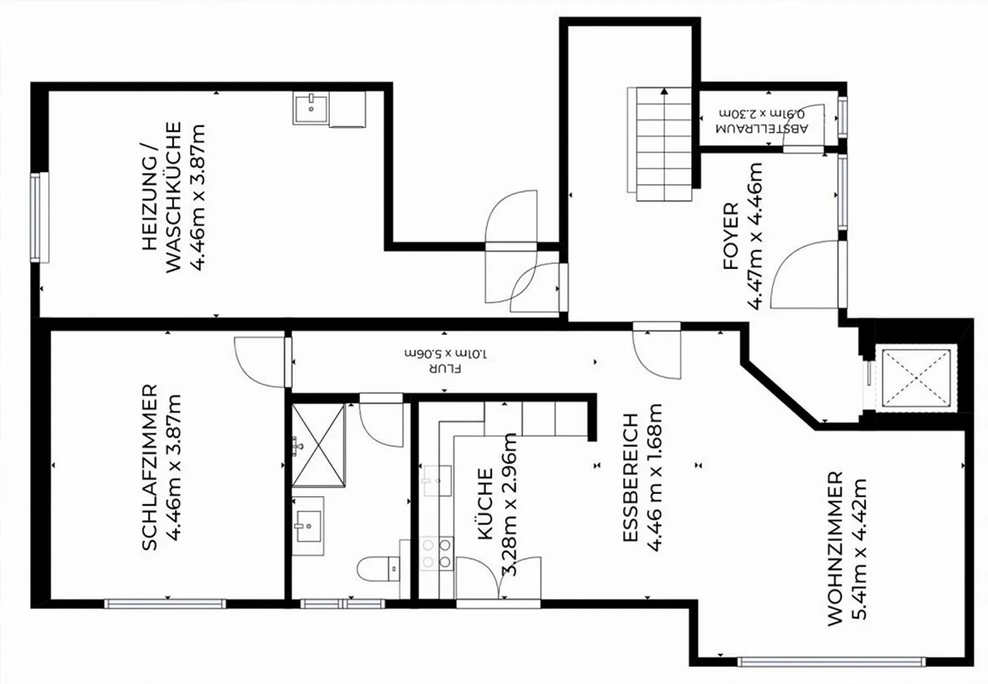
2.5 Zimmer Wohnung mit Aussicht zu vermieten
Moderne 2.5-Zimmerwohnung in ruhiger Waldesnähe mit Aussicht
Diese helle 2.5-Zimmerwohnung besticht durch ihren modernen Ausbaustil, ihre sonnige Lage und eine schöne Aussicht. Die Wohnung wurde 2017 renoviert und präsentiert sich in einem sehr gepflegten Zustand.
Dank der südseitigen Ausrichtung ist die Wohnung lichtdurchflutet und angenehm sonnig. Der schmale, längliche Balkon eignet sich ideal für Stühle oder einen Grill und lädt zum Entspannen ein – mit Blick ins Grüne. Zusätzlich besteht beim...
Kostenaufstellung
- Nettokosten
- CHF 1’270
- Zusätzliche Kosten
- CHF 120
- Gesamtkosten
- CHF 1’270
Immobiliendetails
- Verfügbar ab
- Nach Vereinbarung
- Zimmer
- 2.5
- Baujahr
- 1986
- Renovierungsjahr
- 2017
- Wohnfläche
- 63 m²
- Etage
- 1.
- Geschosse
- 1



