Wohnung mieten - Tulpenweg 111, 3098 Köniz
Warum Sie diese Immobilie lieben werden
Moderne Küche mit Geschirrspüler
Faires Preis-Leistungs-Verhältnis
Keine Kaution erforderlich
Besichtigung vereinbaren
Besichtigung buchen
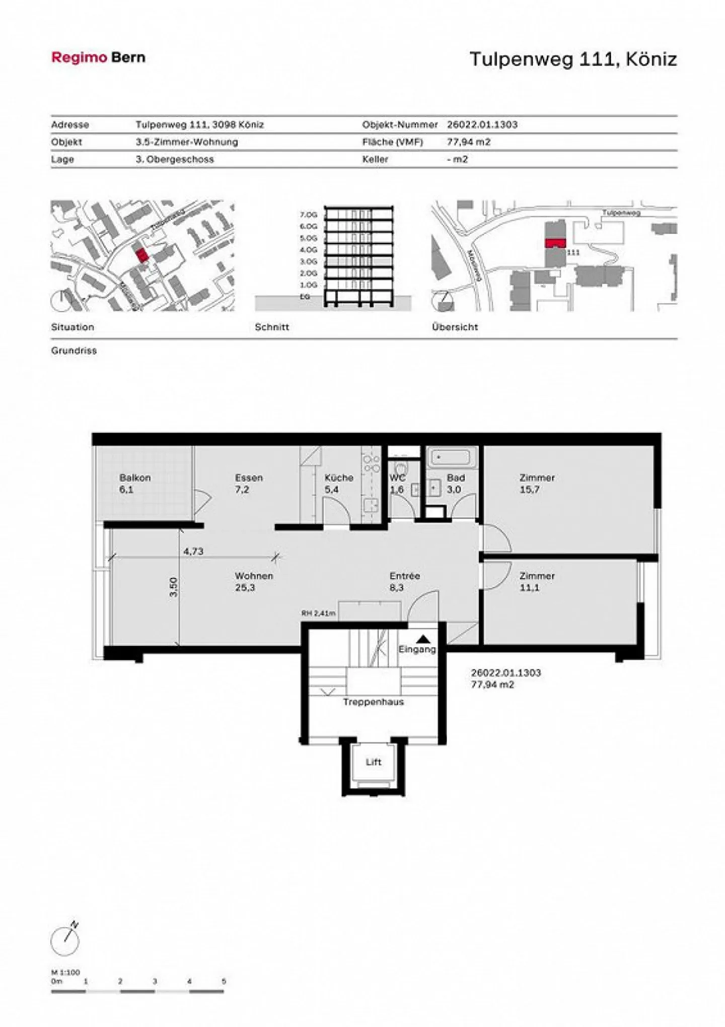
MIETEN OHNE KAUTION - Familienfreundliches Quartier im Grünen
Sie werden es möglicherweise bereuen, wenn Sie zu spät kommen. Denn diese Wohnung befindet sich an zentraler Lage und dennoch im Grünen. Sie ist geräumig, modern ausgestattet und überzeugt durch ein faires Preis-Leistungsverhältnis.
Für Ihre Wohnqualität:
\- Küche mit Glaskeramikherd und Geschirrspüler
\- Parkett und Plattenböden
\- Nasszelle mit Badewanne
\- separates WC
\- Reduit
\- Balkon
\- Kellerabteil
\- Lift
Zusätzlich auf Wunsch: Einstellplatz Tiefgarage, ab CHF 105.00/Monat
Bei diesem Mietobjekt m...
Kostenaufstellung
- Nettokosten
- CHF 1'685
- Zusätzliche Kosten
- CHF 215
- Gesamtkosten
- CHF 1'685
Immobiliendetails
- Verfügbar ab
- 16.06.2026
- Zimmer
- 3.5
- Wohnfläche
- 78 m²
- Etage
- 3.



