Wohnung mieten - Sonnenbergstrasse 11, 8800 Thalwil
Warum Sie diese Immobilie lieben werden
Moderne Küche mit Geschirrspüler
Gemütlicher Balkon zum Entspannen
Parkettböden in der ganzen Wohnung
Besichtigung vereinbaren
Besichtigung buchen
Ihre neue wohlfühloase
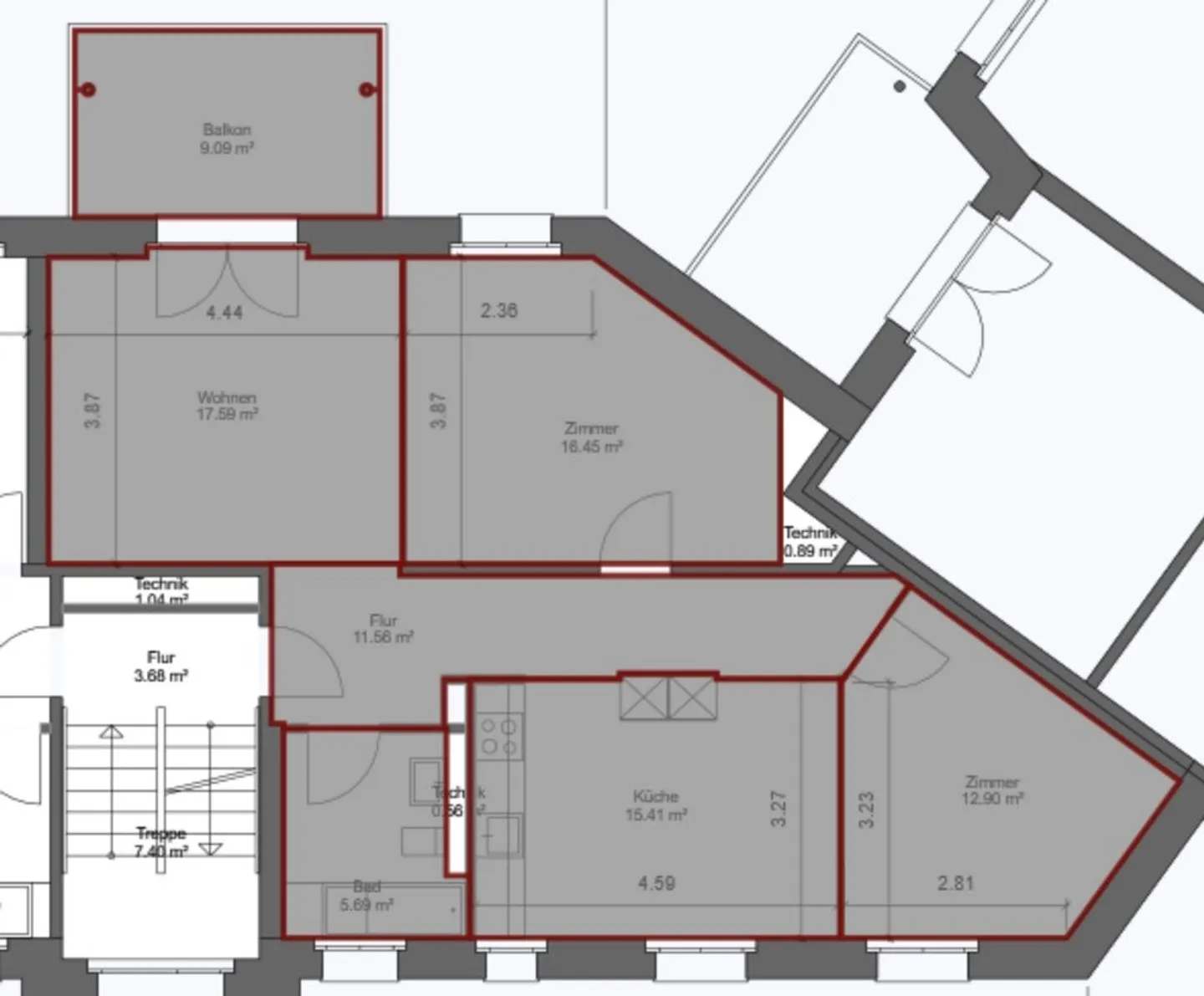
Per 01.12.2025 vermieten wir diese schöne und moderne 3.5 Zimmer Wohnung.
Einkaufsmöglichkeiten in unmittelbarer Nähe.
Den Zürichsee erreichen Sie in wenigen Gehminuten.
Die Wohnung bietet Ihnen folgenden Komfort:
\- Moderne Küche mit Geschirrspüler und Glaskeramik
\- Parkettböden in allen Zimmern
\- Plattenböden in der Küche sowie Badezimmer
\- Bad mit Badewanne
\- Balkon
\- Eigenes Kellerabteil vorhanden
Wir möchten Sie darauf hinweisen, dass sich die Wohnung in einer autoarmen Siedlung befindet.
Leider ...
Kostenaufstellung
- Nettokosten
- CHF 2’560
- Zusätzliche Kosten
- CHF 190
- Gesamtkosten
- CHF 2’560
Immobiliendetails
- Verfügbar ab
- 01.12.2025
- Zimmer
- 3.5
- Baujahr
- 1956
- Wohnfläche
- 78 m²
- Etage
- 1.



