Wohnung mieten - Rue De L'école De Médecine 11, 1205 Genève
Warum Sie diese Immobilie lieben werden
Große Schaufensterfront
Separate Umkleideräume
Dynamische Nachbarschaftslage
Besichtigung vereinbaren
Besichtigung buchen
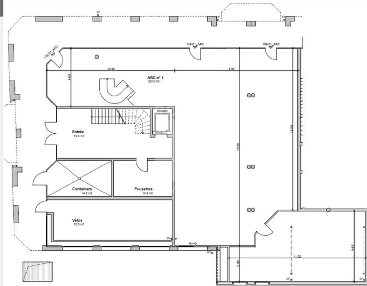
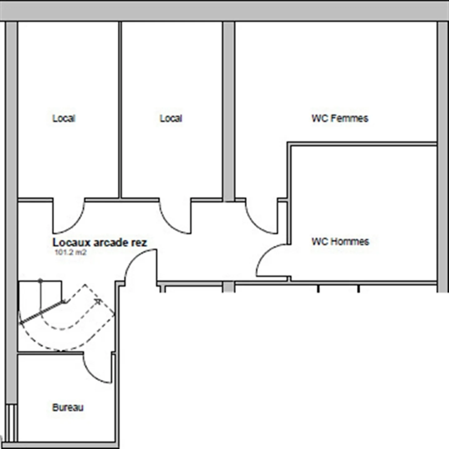
«arkade von ca. 253 m² mit untergeschoss von ca. 101 m² wohnfläche»
Sehr schöne Lage für diese Passage von ca. 253 m² mit dieser großen Fensterlinie, an der Kreuzung der Grands Boulevards in einem dynamischen und lebendigen Viertel, kommen Sie und entdecken Sie diese Orte ohne Verzögerung.
Ideal für eine Marke, ein lokales Geschäft, Catering ist ausgeschlossen.
Es setzt sich wie folgt zusammen:
- eine schöne Verkaufsfläche von 253 m² im Erdgeschoss
- ein Untergeschoss von ca. 101 m², davon 2 separate Umkleideräume mit Duschen
- 2 sanitäre Anlagen
5-jähriger gestaff...
Immobiliendetails
- Verfügbar ab
- Nach Vereinbarung



