Penthouse mieten - Else-Züblin-Strasse 104, 8404 Winterthur
Warum Sie diese Immobilie lieben werden
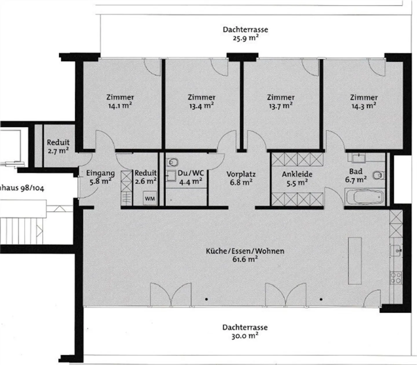
Geräumiger Grundriss für Familien
Zwei grosse Dachterrassen
Moderne Küche für Hobbyköche
Besichtigung vereinbaren
Besichtigung buchen
«Exklusives Wohnen - perfekte Attikawohnung für Familien»
Die Lage
Der Eulachpark, der grösste Park in Winterthur, liegt direkt vor der Haustür Ihres neuen Zuhauses und lädt zum Entspannen und Verweilen ein. Hier wohnen Sie in einem aufstrebenden Quartier, das durch seine familienfreundliche Infrastruktur, kurze Wege zu Schulen und ein attraktives Naherholungsgebiet besticht.
Die Buslinie Nr. 14 hält in unmittelbarer Nähe der Überbauung und bringt Sie im Viertelstundentakt bequem zum Bahnhof Winterthur. Von dort aus erreichen Sie Zürich in nur 30 Minut...
Immobiliendetails
- Verfügbar ab
- Nach Vereinbarung
- Zimmer
- 5.5
- Baujahr
- 2011
- Etage
- 5.



