1 / 10

Wohnung mieten - Grossi Schanz 10, 8260 Stein am Rhein

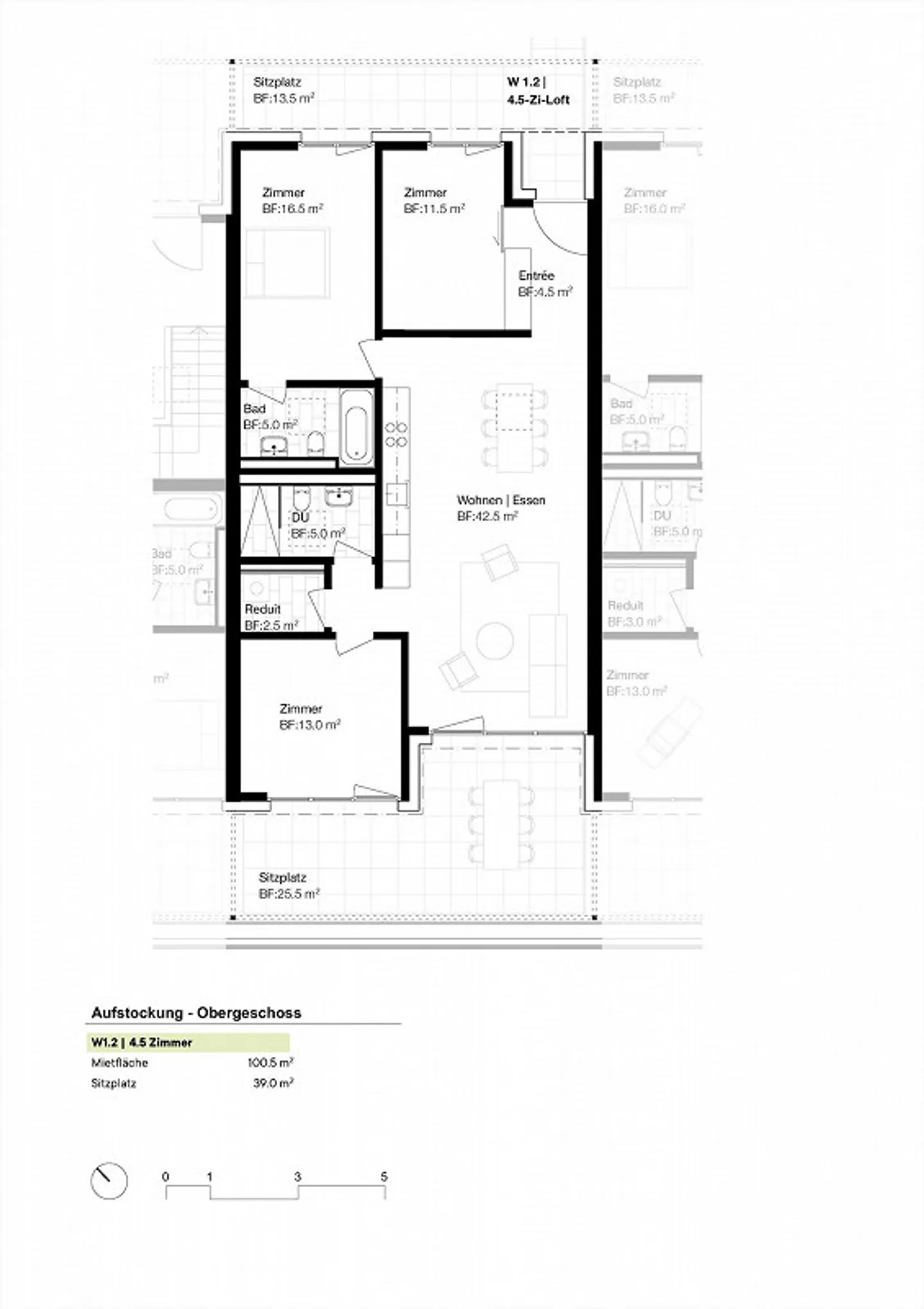
4.5 Zimmer • 100 m²
CHF 2’540.-
CHF 305 m² / year

Warum Sie diese Immobilie lieben werden

Nachhaltiges Wohnkonzept

Stilvolle Holzfassade

Direkter Liftzugang zur Garage

Besichtigung vereinbaren

Besichtigung mit Janine buchen

Janine Maissen
IT3 Treuhand + Immobilien

Helle 4.5-zimmer-wohnung im beliebten städtchen stein am rhein

Einen Steinwurf von der Altstadt und einen Katzensprung vom Rhein entfernt, entstand letzten Herbst die nachhaltige Wohnüberbauung <<Grossi Schanz>>. Wer Naturnähe sucht und aussergewöhnliche Architektur liebt, findet hier das passende Wohngefühl.

Das Projekt "Grossi Schanz" Grossi Schanz bietet einen ausgewogenen Wohnungsmix für individuelle Bedürfnisse. Vom kompakten 1.5-Zimmer-Studio bis zur grosszügigen 5.5-Zimmer-Familienwohnung findet sich hier Wohnraum, der alle Ansprüche zufriedenstellt. ...

Immobiliendetails

Verfügbar ab
01.11.2025
Zimmer
4.5
Wohnfläche
100

Eigenschaften

Garage
Balkon
Unverbaubare Aussicht
Kinderfreundlich
Haustiere erlaubt

Agentur

IT3 Treuhand + Immobilien
Adresse:Schönmaiengässchen 1, 8200, Schaffhausen
Ref: 2064.it3.5607-1102
Online seit
07/08/2025
vor 2 Monaten

Standort

Grossi Schanz 10, 8260 Stein am Rhein

Quellen