Wohnung mieten - Bahnhofmatte 10, 3113 Rubigen
Warum Sie diese Immobilie lieben werden
Helle, offene Küche
Badewanne im Badezimmer
Öffentlicher Verkehr nah
Besichtigung vereinbaren
Besichtigung buchen
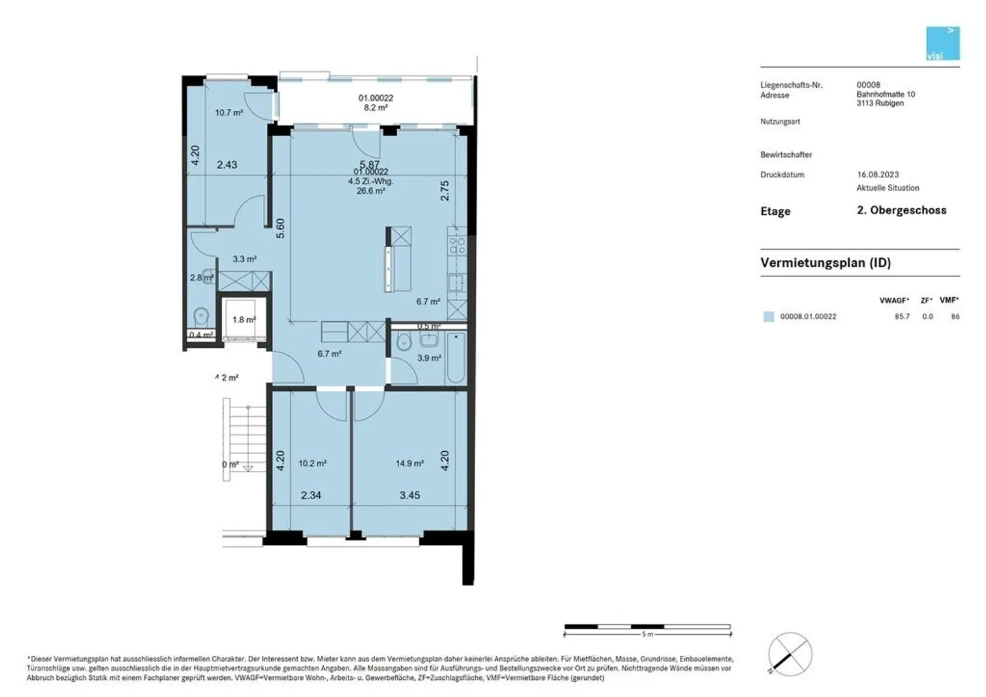
Helle 4.5-Zimmer-Wohnung mit Balkon in Rubigen
Per 01. Juni 2026 oder nach Vereinbarung vermieten wir diese gemütliche und schöne 4.5-Zimmer-Wohnung in Rubigen.
Sie profitieren von folgendem Ausbaustandard:
* Parkettböden in Wohn-/Schlafzimmer
* Plattenböden in Küche, Badezimmer und separatem WC
* helle, offene Küche mit Glaskeramik und Geschirrspüler
* Badezimmer mit Badewanne
* separates WC
* Balkon
* Kellerabteil
* ÖV-Anschluss
* Ein Einstellplatz in der Tiefgarage kann für CHF 110.00 im Monat dazu gemietet werden.
Die Bilder stammen von ei...
Kostenaufstellung
- Nettokosten
- CHF 1’735
- Zusätzliche Kosten
- CHF 250
- Gesamtkosten
- CHF 1’735
Immobiliendetails
- Verfügbar ab
- 01.06.2026
- Zimmer
- 4.5
- Wohnfläche
- 84 m²
- Etage
- 2.



