Wohnung mieten - Via Bramantino 1, 6600 Locarno
Warum Sie diese Immobilie lieben werden
Offene Küche mit Balkon
Bergblick von der Wohnung
Nah an öffentlichen Verkehrsmitteln
Besichtigung vereinbaren
Besichtigung mit Schenker buchen
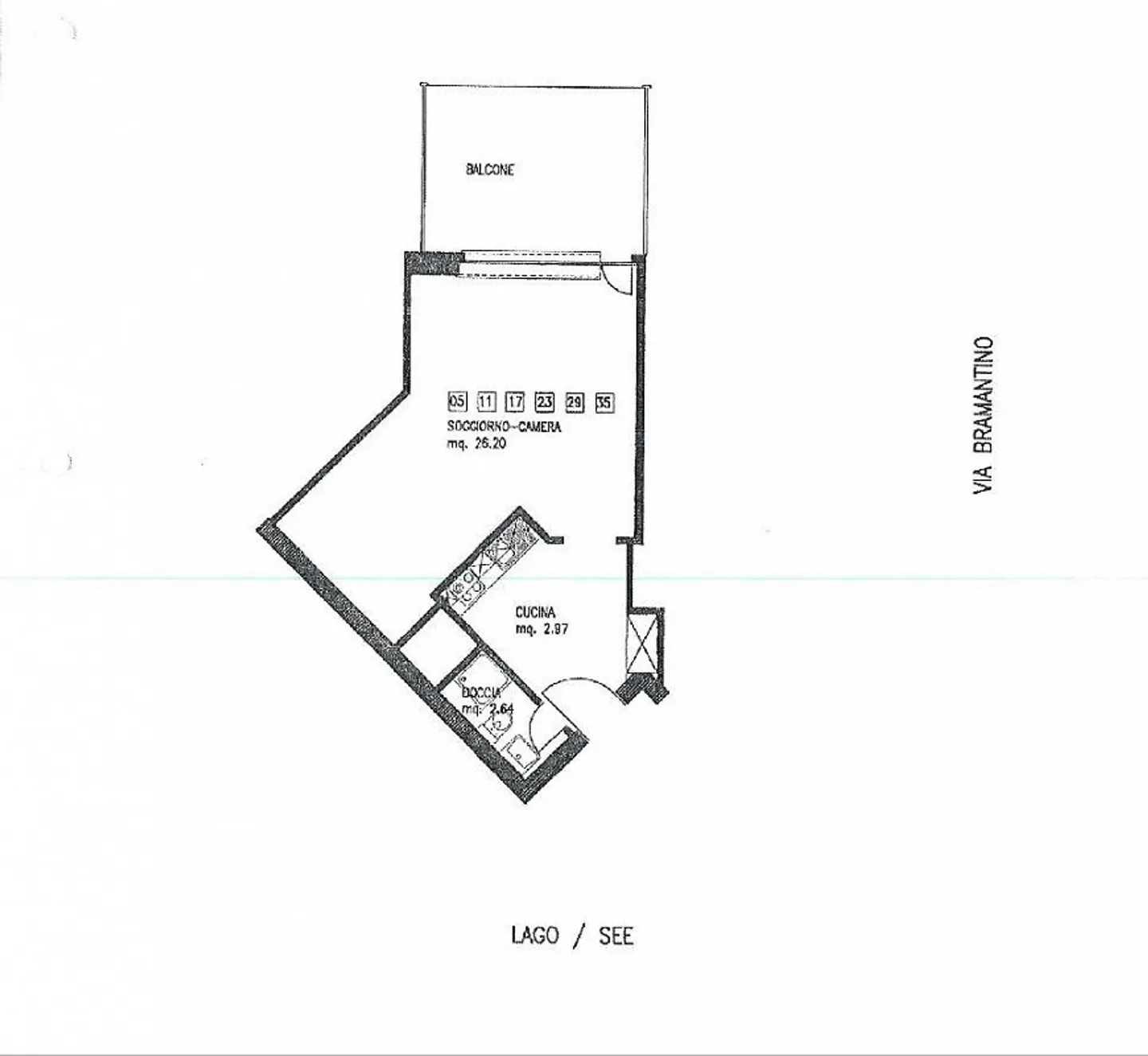
Direkt am See - 1,5-Zimmer-Wohnung mit Balkonen und Aufzug
Die Liegenschaft befindet sich in unmittelbarer Seenähe sowie nahe dem Stadtzentrum. Bus und Bahnhof sind in wenigen Gehminuten erreichbar.
Die 1.5 Zi-Wohnung im 6. Obergeschoss (mit Lift) überzeugt zudem durch folgende Eigenschaften:
* Offene Küche mit Zugang zum Balkon
* Badezimmer mit Dusche
* Plattenboden
* Klimagerät
* Schöne Aussicht auf die Berge
Für eine Besichtigung melden Sie sich bitte direkt bei unserem Hauswart, Herr Schenker, Tel. 079 622 24 93.
SIE WÜNSCHEN WEITERE INFORMATIONEN ZU DIE...
Kostenaufstellung
- Nettokosten
- CHF 1’240
- Zusätzliche Kosten
- CHF 80
- Gesamtkosten
- CHF 1’240
Immobiliendetails
- Verfügbar ab
- 01.07.2026
- Zimmer
- 1.5
- Baujahr
- 1956
- Wohnfläche
- 32 m²
- Etage
- 6.


