Wohnung mieten - Speerstrasse 1, 8800 Thalwil
Warum Sie diese Immobilie lieben werden
Grosser Sitzplatz im Freien
Moderne offene Küche
Hochwertiger Parkettboden
Besichtigung vereinbaren
Besichtigung mit Miguel buchen
Helle und moderne Gartenwohnung
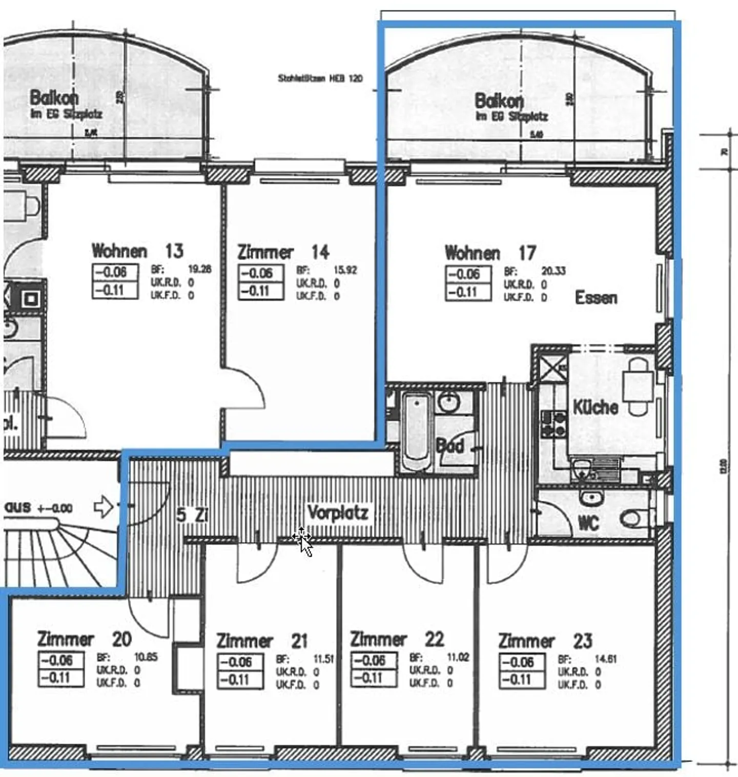
Die Liegenschaft wurde im Jahr 2004 totalsaniert und weist einen zeitgemässen und ansprechenden Ausbau auf. Diese Gartenwohnung verfügt über einen guten Grundriss und grossen Sitzplatz. Die Bilder zeigen den Ausbaustandard der Wohnungen in der Liegenschaft.
Die offene Wohnungsbesichtigung findet am Dienstag, 21. April 2026 zwischen 17.00 und 17.30 Uhr statt. Sie brauchen sich nicht vorher anzumelden. Bitte an der markierten Klingel läuten, falls die Haustüre geschlossen ist.
Die Küche, das Bad/W...
Kostenaufstellung
- Nettokosten
- CHF 2'800
- Zusätzliche Kosten
- CHF 320
- Gesamtkosten
- CHF 2'800
Immobiliendetails
- Verfügbar ab
- 16.04.2026
- Zimmer
- 5
- Baujahr
- 1967
- Wohnfläche
- 100 m²
- Nutzfläche
- 100 m²
- Etage
- EG
- Geschosse
- 1



