Wohnung mieten - Laagasse 1, 9565 Rothenhausen
Warum Sie diese Immobilie lieben werden
Eichenparkettboden
Grosszügiger Balkon
Hochwertige Küchengeräte
Besichtigung vereinbaren
Besichtigung buchen
Modern Wohnen nähe Weinfelden
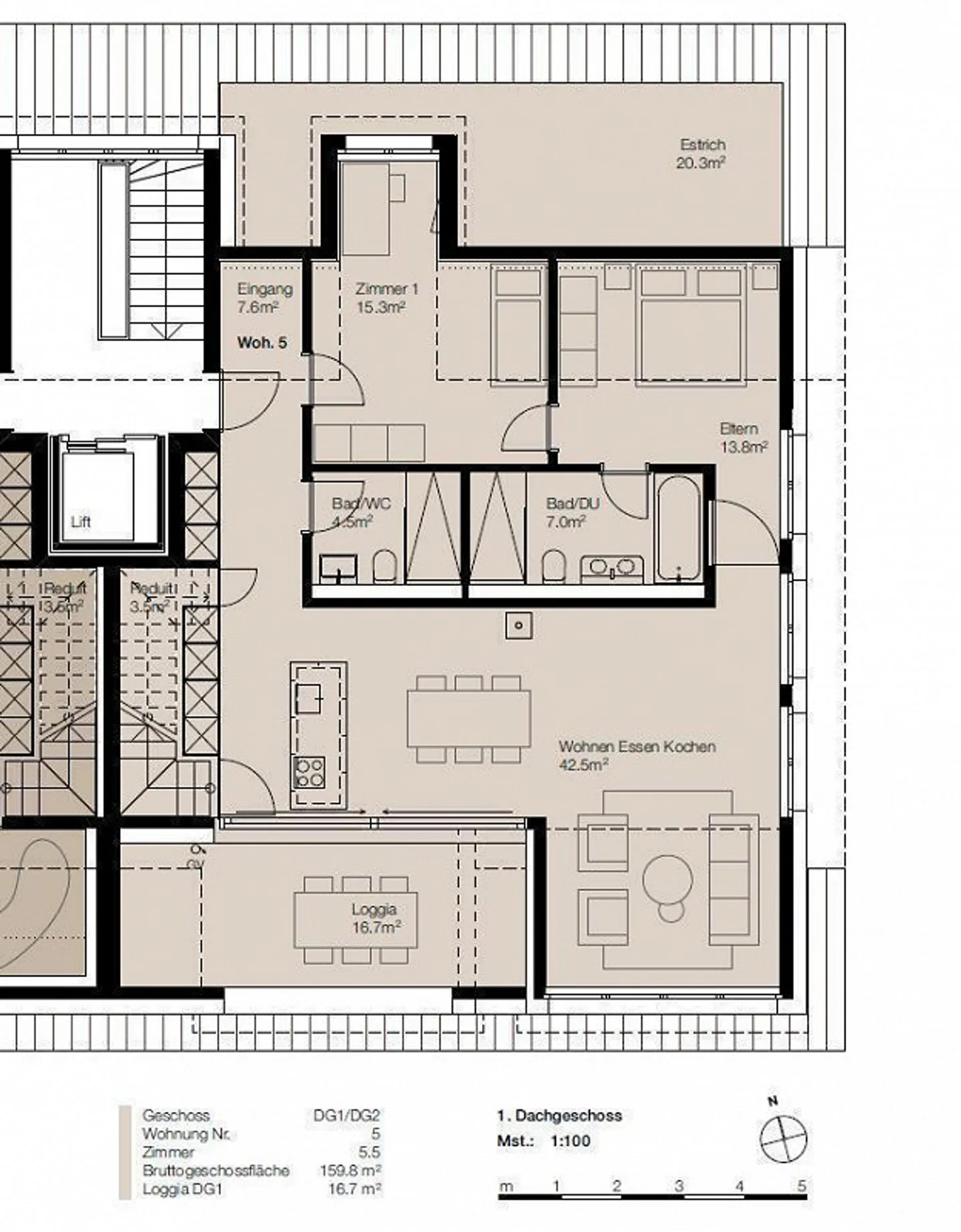
Moderne 5.5-Zimmer-Wohnung mit schönem Balkon zum verweilen in Rothenhausen
- Wohnräume mit geöltem Eichenparkettboden
- Küche mit Kochinsel, viel Stauraum und V-Zug Geräte ausgestattet
- Grosszügiger Balkon zum verweilen
- 3 separate Badezimmer
- Badewanne und Dusche vorhanden
- Eigene Waschküche
- Tiefgaragenplätze vorhanden
Zur obengenannten Nettomiete kommen zusätzlich Fr. 200.00/mtl. für die Heiz und Nebenkosten dazu.
Immobiliendetails
- Verfügbar ab
- Nach Vereinbarung
- Zimmer
- 5.5
- Baujahr
- 2022
- Wohnfläche
- 159 m²
- Etage
- 3.
- Geschosse
- 3



