Einfamilienhaus mieten - 8489 Wildberg
Warum Sie diese Immobilie lieben werden
Unverbauter Blick ins Grüne
Heimkino und Sauna
Geräumige Terrasse und Garten
Besichtigung vereinbaren
Besichtigung mit buchen
MIETDAUER ab 1. Mai 2026 (mind. 4 Monate)
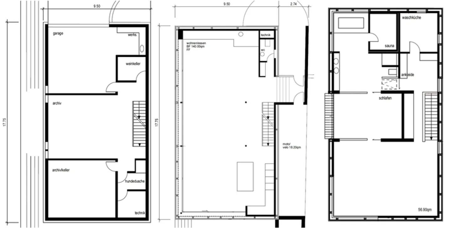
Sauna sowie Heimkino vorhanden! Am Rande der Landwirtschaftszone und mit unverbautem Blick ins Grüne, wird ein schönes, möbliertes Einfamilienhaus vermietet. Sauna, Billardtisch und Heimkino inklusiv, 300m², 1 Terrasse, Garten, Gartensitzplatz, 2 eigene Garagen. Inkl. Heizung, Strom, Wasser, Internet, TV (inkl. Anschluss und Abo), ...
Immobiliendetails
- Verfügbar ab
- Nach Vereinbarung
- Zimmer
- 4.5
- Wohnfläche
- 300 m²



