Einfamilienhaus mieten - Staatsstrasse 58, 8888 Heiligkreuz (Mels)
Warum Sie diese Immobilie lieben werden
Atemberaubende Bergsicht
Privater Garten und Terrasse
Ökologischer Solarstrom
Besichtigung vereinbaren
Besichtigung mit Weibel buchen
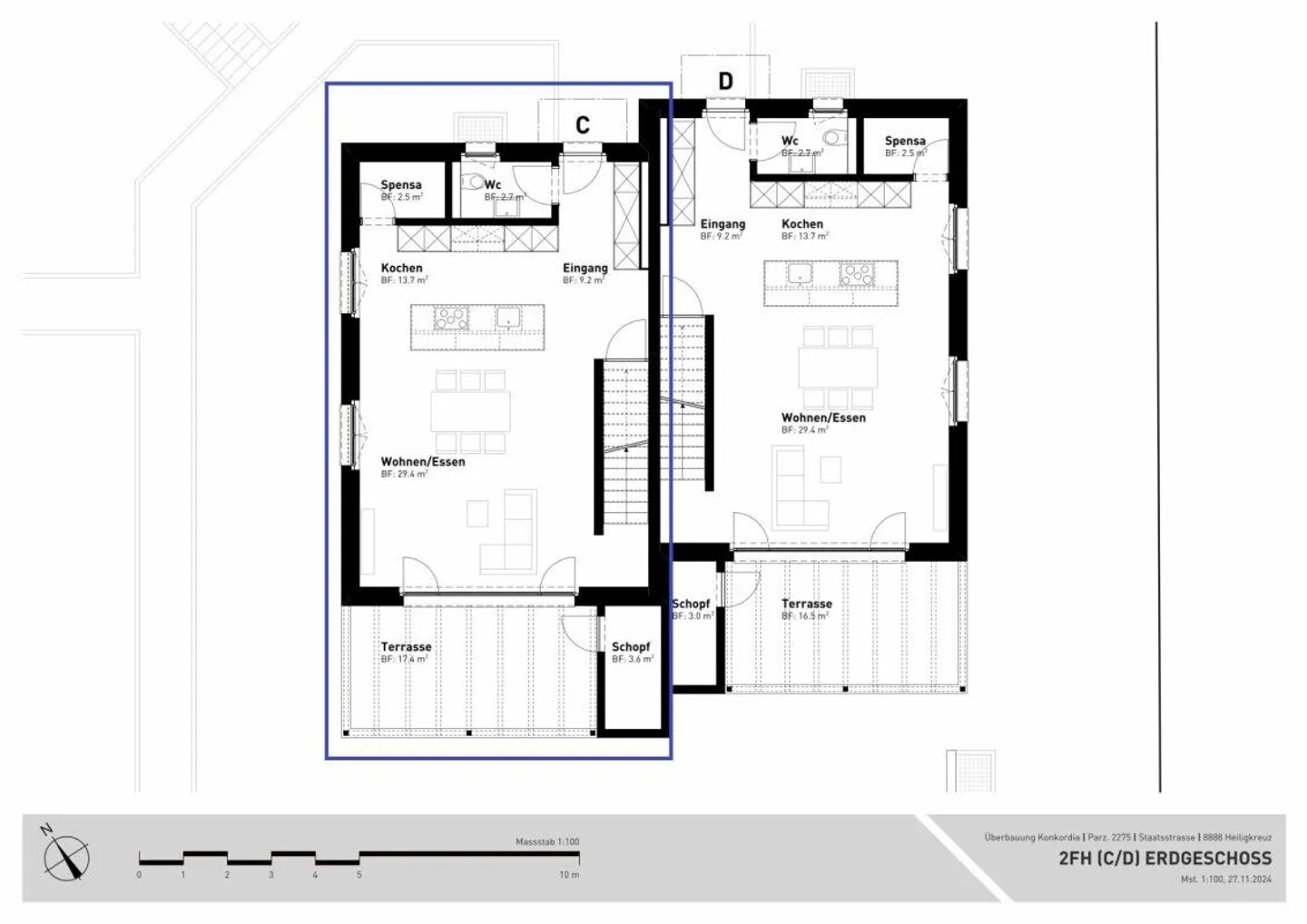
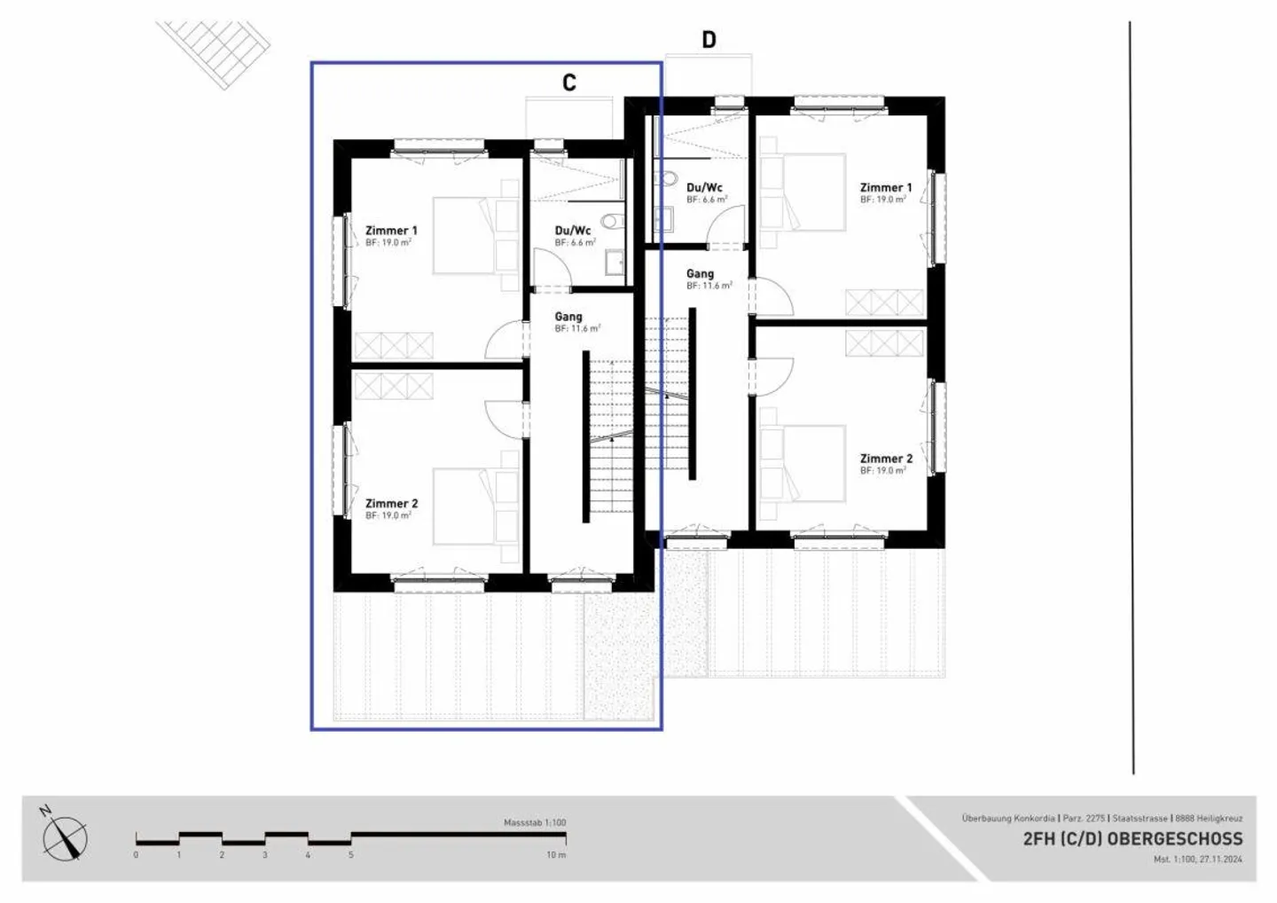
Erstvermietung 5.5-Zi. DEFH - ein Wohntraum für die ganze Familie!
Erstvermietung 5.5-Zi. Doppeleinfamilienhaus - ein Wohntraum für die ganze Familie!
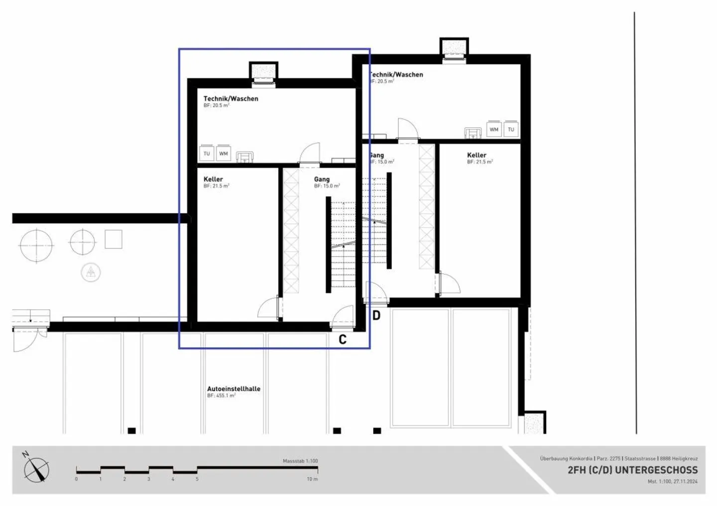
An der Staatsstrasse in Heiligkreuz entsteht ein modernes Mehrfamilienhaus mit insgesamt 3 Wohnungen sowie 4 Doppeleinfamilienhäusern. Die Gesamtüberbauung umfasst eine gemeinschaftliche Tiefgarage mit 14 Tiefgarageneinstellplätzen, ebenfalls werden ausreichend Aussenabstell- und Besucherparkplätze erstellt. Bei allen Tiefgaragenplätzen werden Leerrohre für E-Auto-Ladestationen vorbereitet. Auf dem Dach wird eine ...
Kostenaufstellung
- Nettokosten
- CHF 3’000
- Zusätzliche Kosten
- CHF 300
- Gesamtkosten
- CHF 3’000
Immobiliendetails
- Verfügbar ab
- Nach Vereinbarung
- Zimmer
- 5.5
- Wohnfläche
- 184 m²
- Grundstücksfläche
- 310 m²



