Reihenhaus mieten - Chemin Des Rubiettes 27, 1222 Vésenaz
Warum Sie diese Immobilie lieben werden
In der Nähe des Sees
Geräumige Wohnbereiche
Garage für zwei Autos
Besichtigung vereinbaren
Besichtigung mit Muriel buchen
6-zimmer reihenhaus
Schöne moderne Villa in Vésenaz
In einem Wohngebiet am linken Ufer, in der Nähe des Sees, öffentlicher Verkehrsmittel und aller Annehmlichkeiten.
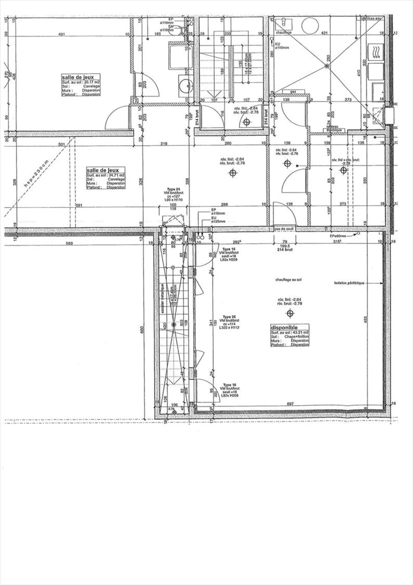
Diese hervorragende moderne Villa mit privatem Garten ist wie folgt verteilt:
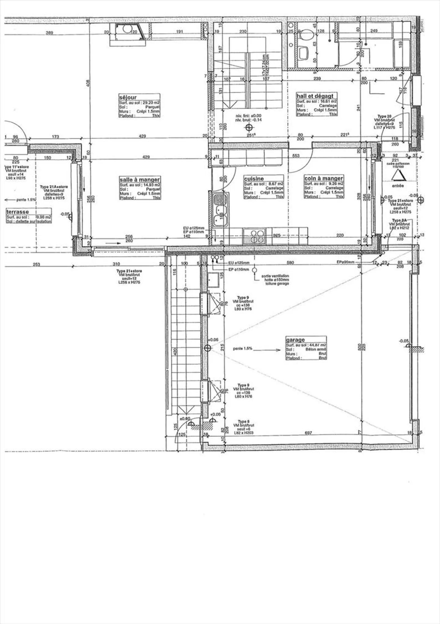
Erdgeschoss: Eingangsbereich, Gäste-WC, Garderobe, voll ausgestattete Küche (Kühlschrank, Gefrierschrank, Kochplatten, Ofen, Dunstabzugshaube, Geschirrspüler) mit Essbereich, Wohnzimmer und Esszimmer mit Kamin und Zugang zur Terrasse und zum Garten.
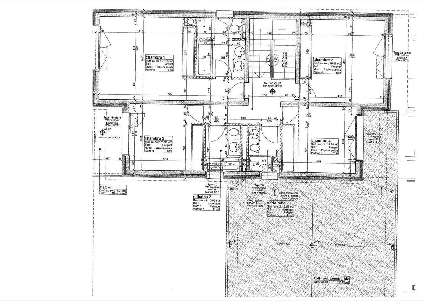
1. Etage: Hauptschlafzimme...
Immobiliendetails
- Verfügbar ab
- Nach Vereinbarung
- Zimmer
- 6
- Badezimmer
- 4
- Wohnfläche
- 200 m²



