Villa mieten - Im Heumoos 25, 8906 Bonstetten
Warum Sie diese Immobilie lieben werden
Grosser, gedeckter Sitzplatz
Offene Küche mit Geschirrspüler
Liftzugang zu allen Etagen
Besichtigung vereinbaren
Besichtigung buchen
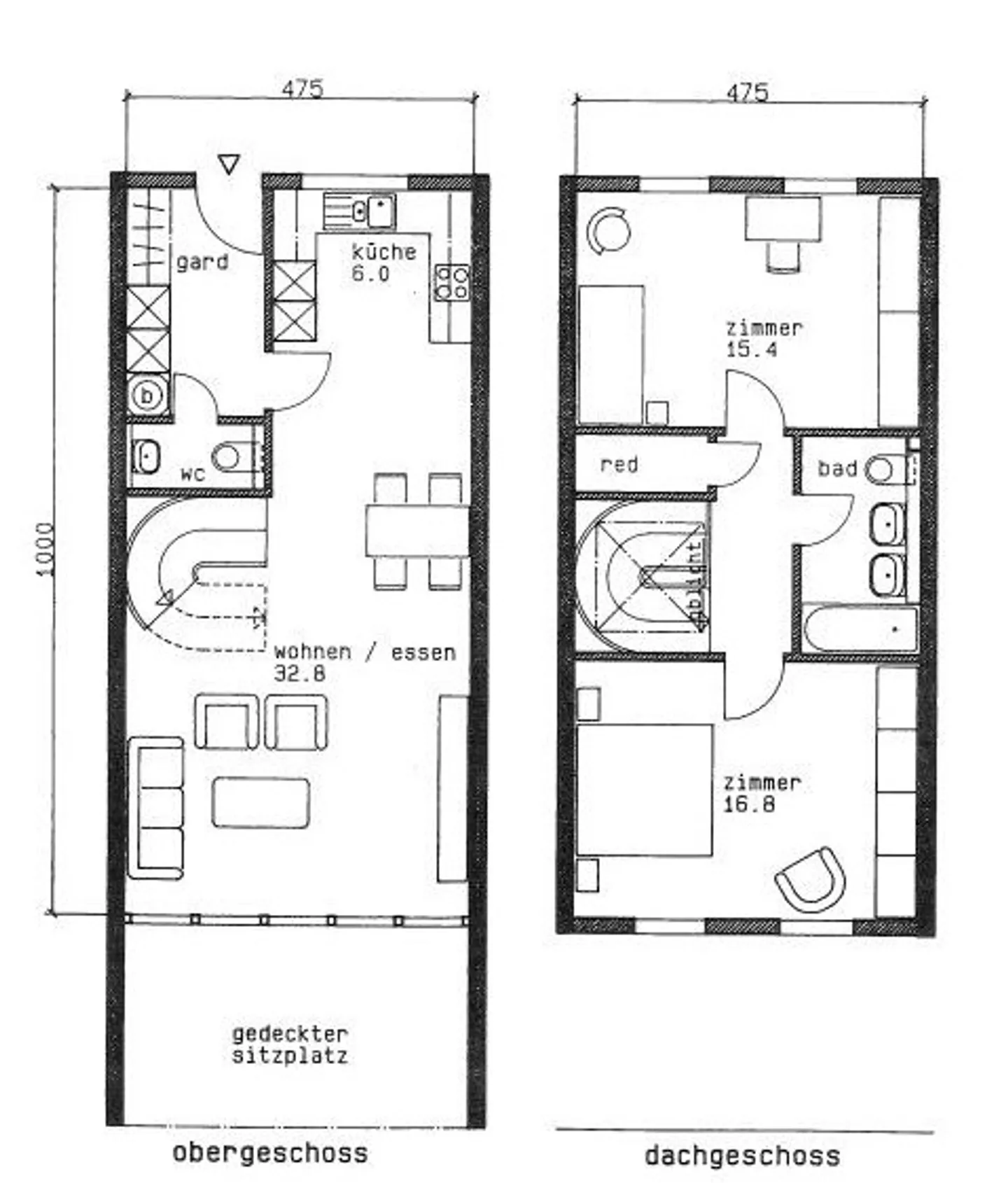
Originelle maisonette-wohnung
Wir vermieten per 01. Oktober 2025 oder nach Vereinbarung diese hübsche Wohnung, welche Ihnen über zwei Stockwerke ein schönes zu Hause bietet. Folgende Ausstattung erwartet Sie:
- Wohn-/Esszimmer und Schlafzimmer mit Parkettboden
- Offene Küche mit Geschirrspüler
- Badezimmer und separates WC
- Grosszügige Zimmer
- Lift
- Eigenes Kellerabteil
- Grosser, gedeckter und sonniger Sitzplatz
- Bahnhof in unmittelbarer Nähe
- Coop-Center und Kleinläden in der Überbauung
- Tiefgaragenplätze können dazu gemietet ...
Kostenaufstellung
- Nettokosten
- CHF 2’555
- Zusätzliche Kosten
- CHF 320
- Gesamtkosten
- CHF 2’555
Immobiliendetails
- Verfügbar ab
- Nach Vereinbarung
- Zimmer
- 3.5
- Baujahr
- 1995
- Wohnfläche
- 91 m²



