Villa mieten - Im Heumoos 23, 8906 Bonstetten
Warum Sie diese Immobilie lieben werden
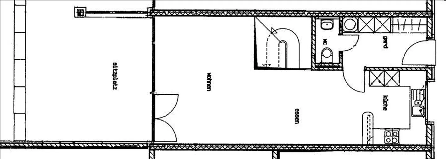
Geräumiger Grundriss auf zwei Etagen
Moderne Küche mit Geräten
Grosse überdachte Terrasse
Besichtigung vereinbaren
Besichtigung buchen
Maisonette-Wohnung mit grosser Terrasse!
Wir vermieten per 01.07.2026 eine grosszügige 3.5 Maisonette-Wohnung, welche sich über zwei Etagen erstreckt.
Vom Eingangsbereich gelangt man über eine Treppe ins Obergeschoss, wo sich die Wohnküche, Wohn-/Schlafbereich sowie das Badezimmer befinden.
Weitere Highlights die überzeugen:
- Originelle Maisonette-Wohnung
- Grosszügiger Grundriss
- Moderne Küche mit GK/GS
- Wohnzimmer mit Parkett
- Korridor/Bad und Küche mit Plattenböden
- Schönes Bad mit Doppellavabo
- Separates WC
- Grosser, gedeckter Sitzp...
Kostenaufstellung
- Nettokosten
- CHF 2'525
- Zusätzliche Kosten
- CHF 300
- Gesamtkosten
- CHF 2'525
Immobiliendetails
- Verfügbar ab
- Nach Vereinbarung
- Zimmer
- 3.5
- Baujahr
- 1995
- Wohnfläche
- 91 m²



