Lagerraum mieten - Wannetalweg, 3326 Krauchthal
1 Zimmer • -1. Etage
CHF 135 / Monat
-
Besichtigung vereinbaren
Besichtigung buchen
NBS Immobilien-Verwaltung GmbH
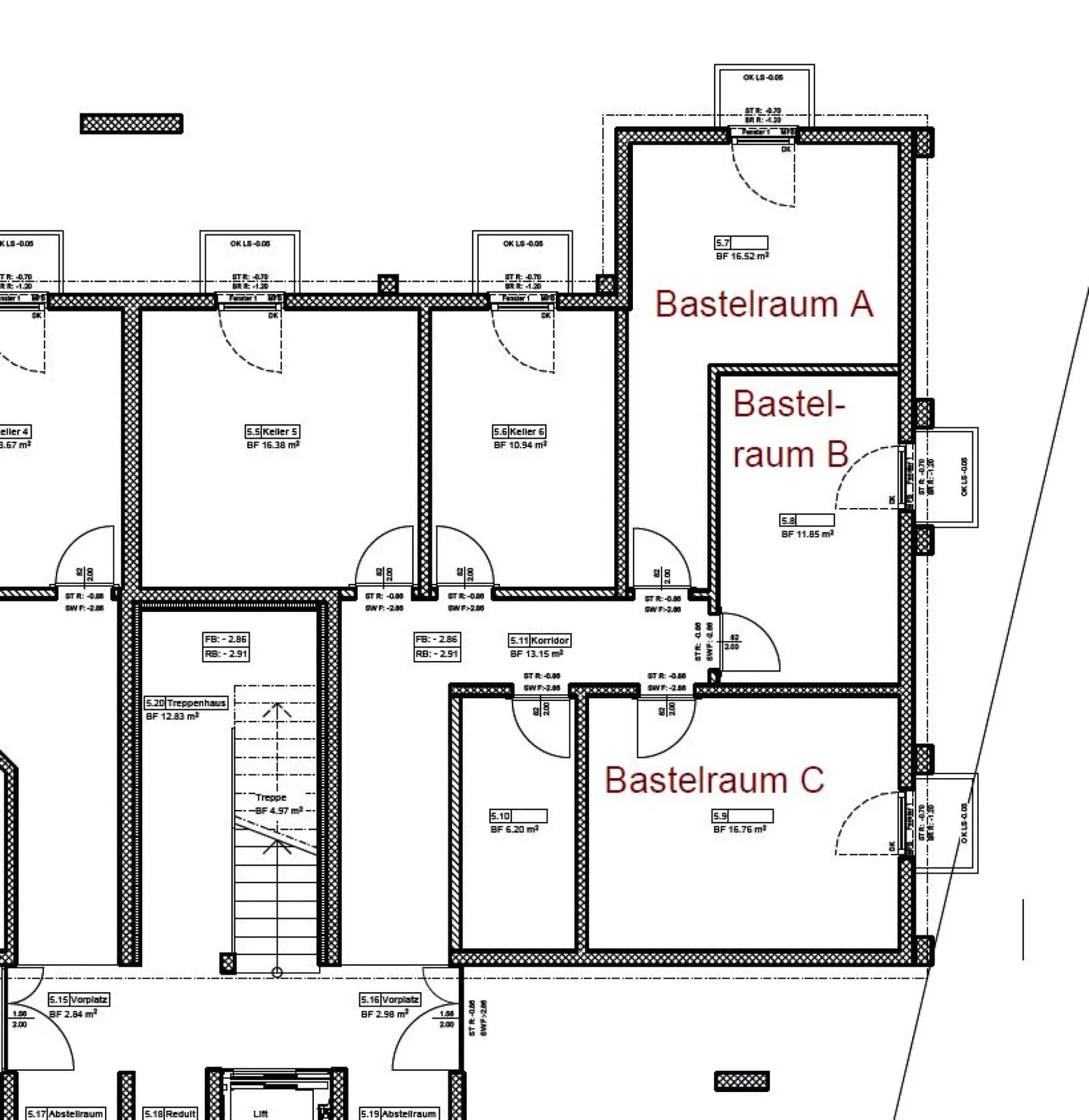
Bastelraum
Wir vermieten einen Hobbyraum/Bastelraum/Abstellraum Typ A
* mit Fenster
* ohne Wasseranschluss
Kostenaufstellung
- Nettokosten
- CHF 135
- Zusätzliche Kosten
- CHF 5
- Gesamtkosten
- CHF 135
Immobiliendetails
- Verfügbar ab
- Nach Vereinbarung
- Zimmer
- 1
- Baujahr
- 2017
Agentur
NBS Immobilien-Verwaltung GmbH
Adresse:Mattenweg, 5616, Meisterschwanden
Online seit
24/03/2026
vor 3 Stunden
Standort
Wannetalweg, 3326 Krauchthal



