Bürofläche mieten - Waldeggstrasse, 3097 Liebefeld
Warum Sie diese Immobilie lieben werden
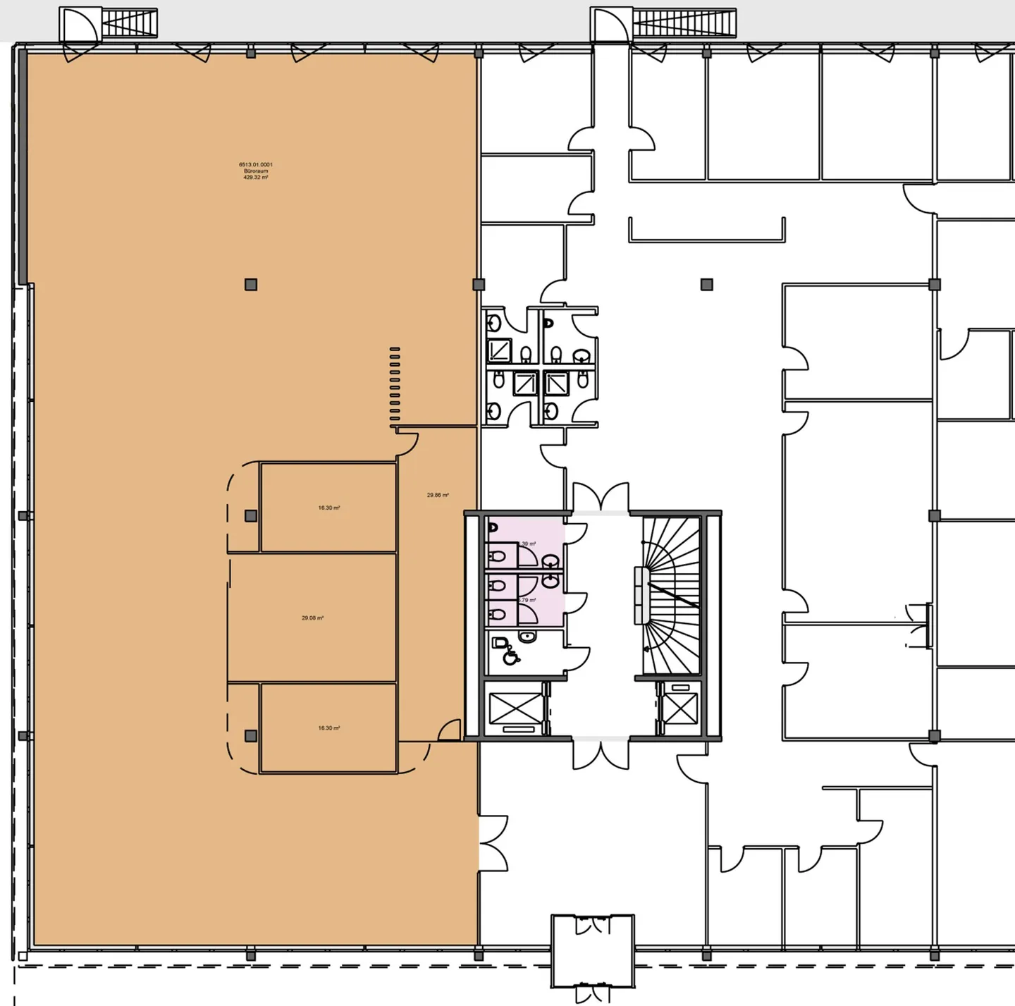
Vielseitige Fläche von 525 m2
Ideal für verschiedene Nutzungen
Ausgezeichnete Verkehrsanbindung
Besichtigung vereinbaren
Besichtigung buchen
Gewerbefläche an idealer lage
Zur Vermietung steht eine Fläche von 525 m2 im Erdgeschoss.
Die Fläche kann als Büro-, Gewerbe- oder Lager sowie medizinisches Labor verwendet werden.
Das Objekt wurde ursprünglich im Rohbau vermietet. Mittlerweile ist es teilweise ausgebaut, teilweise im Edelrohbau. Die vorhandenen Einbauten, Einrichtungen, Ausstattungen und Installationen gehören zum Mieterausbau und fliessen in die Verhandlungen ein.
Die zukünftigen Mieter werden unter denselben Bedingungen in den Mietvertrag eintreten wie die a...
Immobiliendetails
- Verfügbar ab
- Nach Vereinbarung
- Wohnfläche
- 525 m²
- Nutzfläche
- 525 m²



