Industriefläche mit Parkplätzen
Warum Sie diese Immobilie lieben werden
Hohe Decken bis 8m
Nahe Bahnhof
Büros und Service-Räume inklusive
Besichtigung vereinbaren
Besichtigung buchen
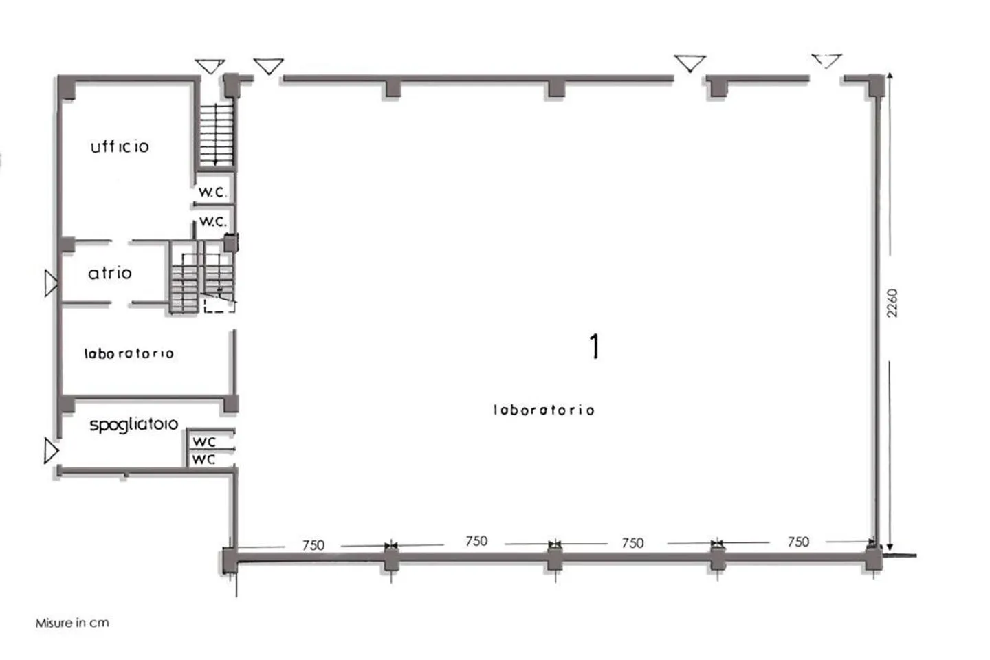
In einem konsolidierten Industriegebiet mit guter Straßen- und Bahnanbindung (der Bahnhof von Mezzovico ist 100 m entfernt) bieten wir eine Fläche von ca. 925 m² mit einer Mindesthöhe von 6 m und einer maximalen Höhe von 8 m zur Miete an, die wie folgt aufgeteilt ist
ERDGESCHOSS:
ca. 720 qm Produktionsfläche / Lager / Werkstatt
ca. 130 qm Büro-, Umkleide- und Service-Räume
8/15 Aussenparkplätze zu CHF 100,-/Monat
ERSTES OBERGESCHOSS:
ca. 75 qm weitere Büroräume
Verfügbarkeit: nach Absprache
Miete: CHF 1...
Kostenaufstellung
- Nettokosten
- CHF 11'000
- Zusätzliche Kosten
- CHF 1'000
- Gesamtkosten
- CHF 11'000
Immobiliendetails
- Verfügbar ab
- 01.01.1970



