Bürofläche mieten - Sporrengasse, 8200 Schaffhausen
Warum Sie diese Immobilie lieben werden
Stilvolle, frisch renovierte Räume
Anpassbare Raumaufteilung
Hervorragende Verkehrsanbindung
Besichtigung vereinbaren
Besichtigung mit Tanner buchen
Flexible büro/praxisräume an bester lage, mitgestaltung umbau möglich
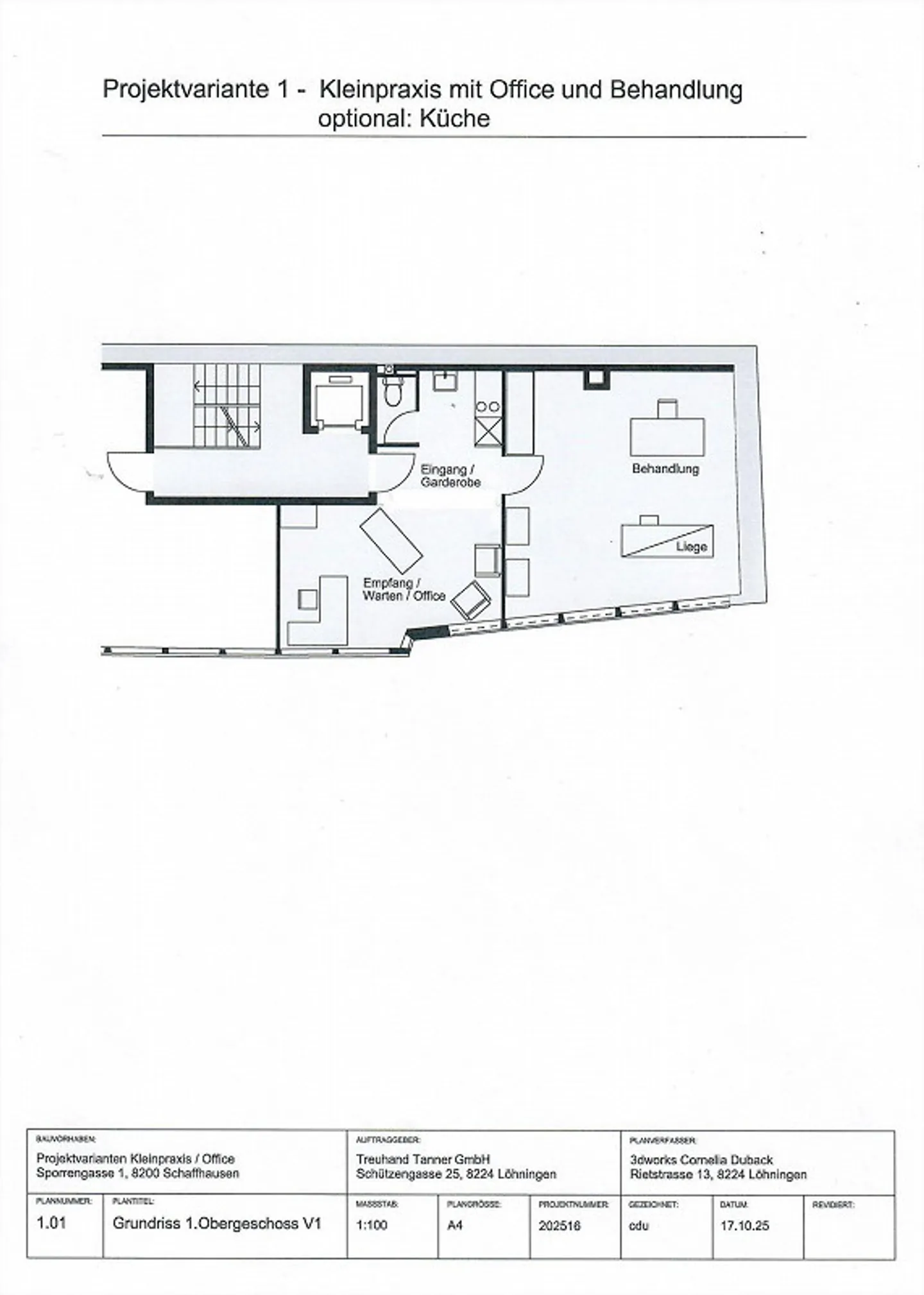
An bester Lage im Herzen der Altstadt vermieten wir diese vielfältig und flexibel nutzbaren Büro- oder Praxisräume.
Unsere Highlights:
Frisch umgebaute, einladende und stilvolle Räume an Zentraler Innenstadtlage
Mitgestalten: bei langjährigem Mietvertrag kann bei Bedarf eine kleine Küche oder Waschmaschine Tumbler eingebaut werden
Interessante Projektvarianten im Anhang
Ideal für Büro, Bürogemeinschaft/Kleinpraxis mit Behandlungsräumen
Untervermietung möglich
Viele Projektvarianten können verwirklicht ...
Kostenaufstellung
- Nettokosten
- CHF 1’340
- Zusätzliche Kosten
- CHF 150
- Gesamtkosten
- CHF 1’340
Immobiliendetails
- Verfügbar ab
- Nach Vereinbarung
- Renovierungsjahr
- 2025



